Vente
Maison
à
Rueil-Malmaison
1 370 000 €
Rueil-Malmaison (92500)
iad France - Vanessa Dinclaux vous propose: Rueil-Malmaison – Quartier Jonchère Malmaison Saint-Cucufa - Maison individuelle de 10 pièces - 220 m² habitables divisés en 2 logements - terrain de 642 m² - 4 garages
Et si votre maison s’adaptait à votre vie… et non l’inverse ?
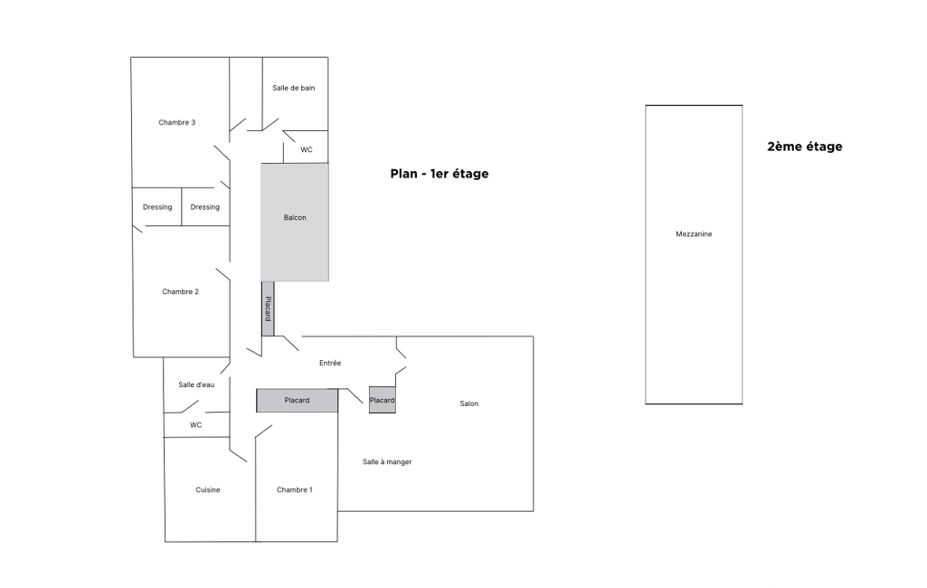
Dans un environnement privilégié, à deux pas de la forêt de Saint-Cucufa, cette maison indépendante de 220 m² habitables (238 m² au sol) offre une configuration rare : deux logements distincts sur deux niveaux, réunissables selon vos projets.
Un bien aux multiples scénarios de vie.
Trois façons d’habiter cette maison :
> Famille multigénérationnelle : Parents, grands-parents, jeunes adultes… chacun son espace, tout en restant sous le même toit.
> Profession libérale ou télétravail : Un étage dédié à votre activité, l’autre à votre vie privée. Recevoir vos clients sans envahir votre quotidien devient enfin possible.
> Grande maison familiale : Réunissez les deux niveaux pour créer une propriété de plus de 220 m² à repenser selon vos envies. Volumes, luminosité et potentiel sont déjà là.
Composition actuelle : un appartement de 106 m² habitables au rez-de-chaussée surélevé avec double séjour lumineux de plus de 30 m² ouvrant sur une grande terrasse carrelée exposée plein sud, cuisine indépendante, 3 chambres, salle de bain, salle d’eau, 2 WC.
Au 1er étage, un appartement de 114 m² habitables à la distribution similaire mais avec 1 pièce supplémentaire de 7 m² habitables (25 m² au sol).
Extérieurs & stationnement :
- Parcelle de 642 m²
- 4 garages fermés
- Plusieurs stationnements sur la parcelle
- 1 place cadastrée dans la rue
Ses atouts majeurs :
✔ Volumes très généreux
✔ Luminosité omniprésente
✔ Grande terrasse plein sud
✔ Quartier résidentiel prisé, environnement verdoyant
✔ Excellente sectorisation scolaire
À proximité :
> Écoles publiques : George Sand, Collège de la Malmaison, Lycée Richelieu
> Établissements privés réputés : Daniélou et Passy-Buzenval
> Centre-ville de Rueil-Malmaison à 2 km
> Accès Autoroute A86 en moins de 5 minutes
Une maison évolutive, rare, qui offre de l’espace aujourd’hui et des possibilités pour demain. Un bien pour ceux qui veulent de la surface, du potentiel… et un vrai cadre de vie.
Honoraires d'agence à la charge de l'acquéreur. Prix honoraires inclus : 1370000 euros. Prix hors honoraires : 1330681 euros. Honoraires TTC à la charge de l'acquéreur (2,95% du prix du bien hors honoraires) : 39319 euros.
Information d'affichage énergétique sur ce bien : classe ENERGIE D indice 217 et classe CLIMAT B indice 7. Les informations sur les risques auxquels ce bien est exposé, y compris l'obligation légale de débroussaillement, sont disponibles sur le site Géorisques : http://www.georisques.gouv.fr.
La présente annonce immobilière a été rédigée sous la responsabilité éditoriale de Mme Vanessa Dinclaux mandataire indépendant en immobilier (sans détention de fonds), agent commercial de la SAS I@D France immatriculé au RSAC de Nanterre sous le numéro 811327279, titulaire de la carte de démarchage immobilier pour le compte de la société I@D France SAS.
Mandat : 1956446
Diagnostic de Performance Énergétique (DPE)
Plus d'informations
-
Descriptif
- Cave
- Terrasse
- Nbre. d'étages : 3
- Nbre. de chambres : 6
- Nb. Parking : 1
- Nb. de pièces : 10
-
Conditions
- Honoraires : 39 319 €
- Prix hors honoraires acquéreur : 1 330 681 €
- Honoraires à charge de : acquéreur
-
Superficies
- Surface du balcon : 7.5 m²
- Superficie terrain : 642 m²
- Surface habitable : 220 m²
-
Equipement
- Chauffage : electrique radiateur
-
Etat
- Année de construction : 1989
Localisation
Contactez nous
Pour plus d'informations sur cette annonce, n'hésitez pas à nous contacter