Vente
Appartement
à
Gennevilliers
465 000 €
Gennevilliers (92230)
iad France - Bruno Donati vous propose: ! Appartement traversant de 5 pièces, 2 balcons, un box et une cave !
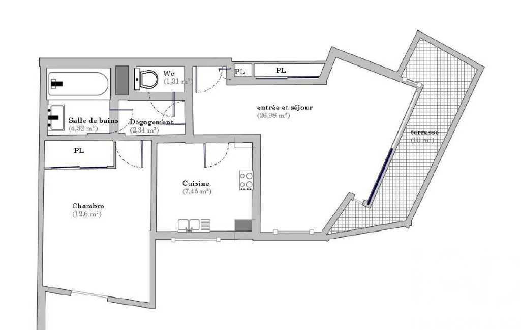
Tout prés du métro 'les Agnettes' (ligne 13 et future ligne 15), découvrez cet appartement de 102m² situé au 5ème étage (avec ascenseur) d'une résidence calme et bien entretenue.
Il vous offrira un beau potentiel pour devenir un véritable cocon après quelques rafraîchissements à prévoir.
Cet appartement se compose d'un double séjour lumineux de 34m², de trois chambres, de deux salles d'eau et de deux balcons offrant chacun une vue dégagée sur les espaces verts.
Les expositions sud et ouest apportent une belle luminosité tout au long de la journée.
La cuisine est à réaménager selon vos goûts et besoins, offrant ainsi la possibilité de créer un espace moderne et fonctionnel.
Un BOX de 15m² ainsi qu'une CAVE complètent ce bien.
Les travaux de rénovation des façades et d'amélioration énergétique ont été votés lors de la dernière assemblée générale, les acquéreurs en bénéficieront.
A proximité et à pied :
- le magasin Carrefour à 5mn,
- le nouveau centre commercial à 8mn (boulangerie, Picard, Naturalia, etc...)
- le métro à 6mn,
- la Mairie et le bureau de poste à 5mn,
- le cinéma Jean Vigo à 10mn,
Si vous recherchez un appartement à personnaliser selon vos goûts, proche des commodités et du métro, celui ci est fait pour vous.
Contactez moi pour plus de précisions.
La presente annonce immobiliere vise 3 lots situés dans une copropriété de 180 lots au total et ne faisant l'objet d'aucune procédure en cours citée à l'article L. 721-1 du code de la construction et de l'habitation. Montant moyen mensuel de charges déclaré par le vendeur : 330.67€ par mois (soit 3968 € annuel). Honoraires d'agence à la charge du vendeur.
Information d'affichage énergétique sur ce bien : classe ENERGIE C indice 156 et classe CLIMAT C indice 29. Les informations sur les risques auxquels ce bien est exposé, y compris l'obligation légale de débroussaillement, sont disponibles sur le site Géorisques : http://www.georisques.gouv.fr.
La présente annonce immobilière a été rédigée sous la responsabilité éditoriale de M Bruno Donati mandataire indépendant en immobilier (sans détention de fonds), agent commercial de la SAS I@D France immatriculé au RSAC de Nanterre sous le numéro 902039676, titulaire de la carte de démarchage immobilier pour le compte de la société I@D France SAS.
Mandat : 1777778
Diagnostic de Performance Énergétique (DPE)
Plus d'informations
-
Descriptif
- Cave
- Étage du bien : 5eme
- Gardien
- Ascenseur
- Nbre. d'étages : 6
- Nbre. de chambres : 3
- Nb. de pièces : 4
-
Equipement
- Câble TV
- Placards
- Chauffage : individuel gaz
- Interphone
-
Loi ALUR
- Copropriété
- Nombre de lots de la copropriété : 180
- Moyenne de la quote part(an) : 3 968 €
-
Superficies
- Surface du balcon : 4.5 m²
- Surface habitable : 102 m²
-
Etat
- Année de construction : 1981
-
Conditions
- Honoraires à charge de : vendeur
Localisation
Contactez nous
Pour plus d'informations sur cette annonce, n'hésitez pas à nous contacter