Vente
Appartement
à
Marseille
1 511 000 €
Marseille (13008)
iad France - Sarah Rozière (06 99 86 19 42) vous propose : Appartement T5 avec rooftop – Résidence L’Orée Borély.
Idéalement située boulevard Joseph Vernet, au cOEur du très prisé 8 ème arrondissement de Marseille, la résidence contemporaine L’Orée Borély conjugue élégance architecturale et qualité de vie préservée. À seulement quelques minutes du Parc Borély et des plages du Prado, cette adresse rare offre un cadre de vie verdoyant et apaisé. Disponible 2027.
Un appartement raffiné :
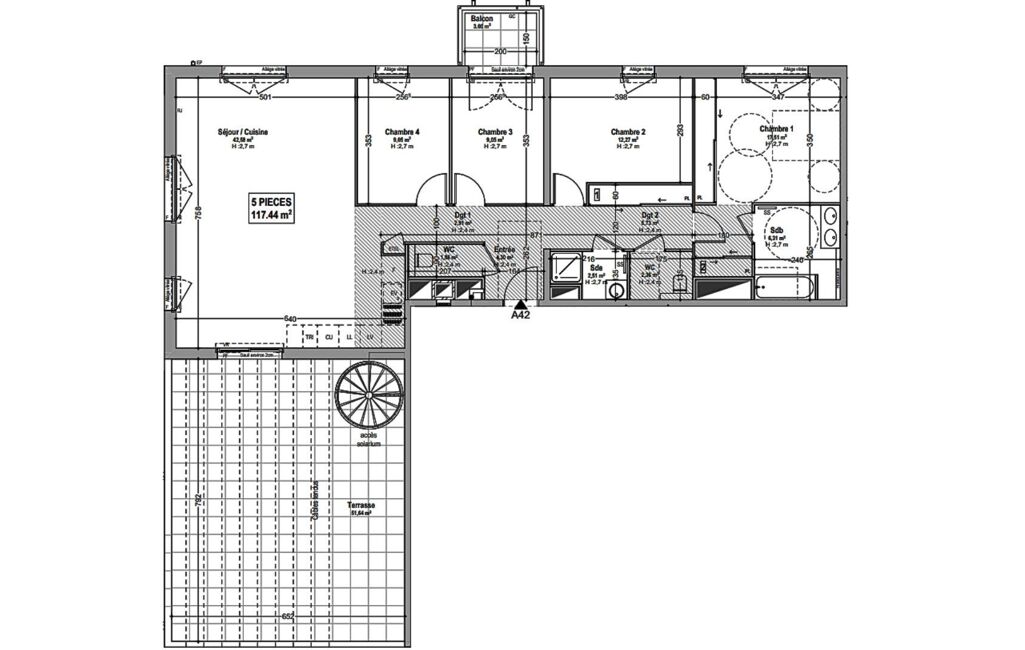
Situé au 4 ème et dernier étage, cet appartement T5 de 117 m² environ habitables se prolonge par une terrasse de 52 m² environ et un solarium en rooftop de 80 m² environ.
- Séjour/cuisine lumineux de 43 m² environ.
- Quatre chambres, dont une suite parentale.
- Salle de bains et salle d’eau modernes.
- Annexe incluse : un garage.
De belles prestations :
- Chauffage et rafraîchissement collectif par pompe à chaleur thermodynamique.
- Volets roulants motorisés et menuiseries aluminium.
- Résidence sécurisée avec ascenseur et visiophone.
L’art de vivre à Marseille 8 :
- À proximité immédiate du Parc Borély, du bord de mer et des plages du Prado.
- Commerces, écoles et transports accessibles à pied.
- Accès rapide à l’A50 et au centre-ville de Marseille.
- Quartier calme, résidentiel et verdoyant, prisé pour sa qualité de vie.
N’hésitez pas à me contacter pour plus d’informations ou pour un accompagnement sur mesure.
Honoraires d’agence à la charge du vendeur. Bien non soumis au DPE. Les informations sur les risques auxquels ce bien est exposé sont disponibles sur le site Géorisques : www.georisques.gouv.fr. La présente annonce immobilière a été rédigée sous la responsabilité éditoriale de Mlle Sarah Rozière EI (ID 83696), mandataire indépendant en immobilier (sans détention de fonds), agent commercial de la SAS I@D France immatriculé au RSAC de Clermont-Ferrand sous le numéro 978616993, titulaire de la carte de démarchage immobilier pour le compte de la société I@D France SAS.
Retrouvez tous nos biens sur notre site internet. www.iadfrance.fr
Mandat : 1822828-1
Diagnostic de Performance Énergétique (DPE)
Plus d'informations
-
Descriptif
- Étage du bien : 4eme
- Terrasse
- Ascenseur
- Nbre. d'étages : 4
- Nbre. de chambres : 4
- Nb. de pièces : 5
-
Equipement
- Câble TV
- Digicode
- Interphone
- Climatisation
-
Etat
- Année de construction : 2027
-
Conditions
- Honoraires à charge de : vendeur
-
Superficies
- Surface habitable : 117 m²
Localisation
Contactez nous
Pour plus d'informations sur cette annonce, n'hésitez pas à nous contacter