Vente
Appartement
à
Hendaye
284 000 €
Hendaye (64700)
iad France - Florie Chartrou vous propose: Investissement locatif rare avec autorisation de location saisonnière! Liberté totale d’exploitation!
Vous cherchez un bien qui combine rentabilité, souplesse et plaisir personnel ? Ce T3 meublé coche toutes les cases.
Ici, vous êtes propriétaire d’un véritable outil d’investissement avec un atout devenu précieux :
- Vous venez en vacances quand vous voulez
- La location saisonnière est autorisée, dans un secteur où les nouvelles autorisations sont désormais gelées.
- Aucun bail commercial en cours : vous louez quand vous voulez, comme vous voulez, au prix que vous voulez
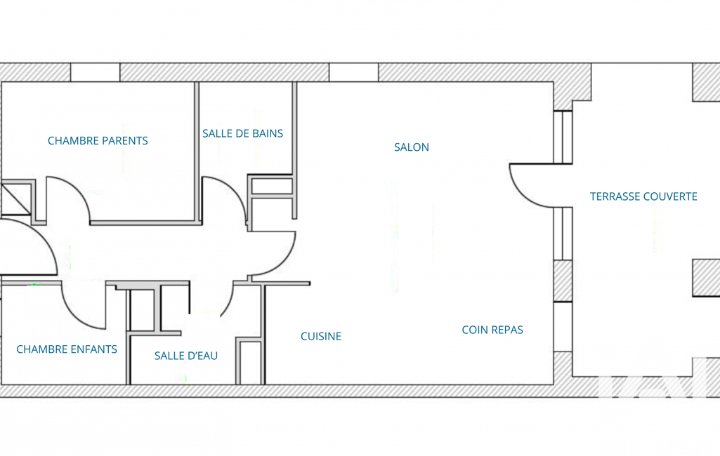
Il se compose :
- De deux chambres (une avec lits superposés et rangement, une chambre double avec armoire),
- D’une salle de bain avec baignoire,
- D’une salle d’eau avec douche et WC,
- D’une cuisine équipée ouverte sur un espace repas convivial pour 6/8 personnes,
- D’un double salon avec banquette convertible (capacité de couchage 6 personnes maxi)
- À l’extérieur, terrasse couverte et jardinet
Dans une résidence pensée pour le confort, le calme et la sécurité :
- Piscine et terrain de tennis,
- Parking avec bornes de recharge électrique,
- Parc paysager avec une vue imprenable sur l’océan,
- Gardien présent l’été,
- Piste cyclable et arrêt de bus au pied de la résidence,
- Environnement ultra calme, tout en restant proche des commodités,
- Résidence très bien fréquentée, cadre serein assuré.
Côté technique et copropriété :
- Ravalement de façade réalisé en 2022,
- Compteurs divisionnaires pour l’eau et l’électricité (vous payez uniquement votre consommation incluse aux charges de copropriété),
- Aucun gros investissement à prévoir
Un bien rare sur le marché, offrant un véritable équilibre entre investissement rentable et pied-à-terre personnel, dans un cadre naturel exceptionnel !
Dossier et informations complémentaires sur demande.
La presente annonce immobiliere vise 2 lots situés dans une copropriété de 268 lots au total et ne faisant l'objet d'aucune procédure en cours citée à l'article L. 721-1 du code de la construction et de l'habitation. Montant moyen mensuel de charges déclaré par le vendeur : 185.33€ par mois (soit 2224 € annuel). Honoraires d'agence à la charge du vendeur.
Information d'affichage énergétique sur ce bien : classe ENERGIE D indice 220 et classe CLIMAT B indice 8. Les informations sur les risques auxquels ce bien est exposé, y compris l'obligation légale de débroussaillement, sont disponibles sur le site Géorisques : http://www.georisques.gouv.fr.
La présente annonce immobilière a été rédigée sous la responsabilité éditoriale de Mme Florie Chartrou mandataire indépendant en immobilier (sans détention de fonds), agent commercial de la SAS I@D France immatriculé au RSAC de Bayonne sous le numéro 810743047, titulaire de la carte de démarchage immobilier pour le compte de la société I@D France SAS.
Mandat : 1952789
Diagnostic de Performance Énergétique (DPE)
Plus d'informations
-
Descriptif
- Gardien
- Terrasse
- Nbre. d'étages : 1
- Nbre. de chambres : 2
- Nb. de pièces : 3
-
Loi ALUR
- Copropriété
- Nombre de lots de la copropriété : 268
- Moyenne de la quote part(an) : 2 224 €
-
Equipement
- Câble TV
- Chauffage : individuel electrique radiateur
-
Etat
- Année de construction : 1998
-
Conditions
- Honoraires à charge de : vendeur
-
Superficies
- Surface habitable : 41 m²
Localisation
Contactez nous
Pour plus d'informations sur cette annonce, n'hésitez pas à nous contacter