Vente
Maison de ville
à
Guebwiller
145 000 €
Guebwiller (68500)
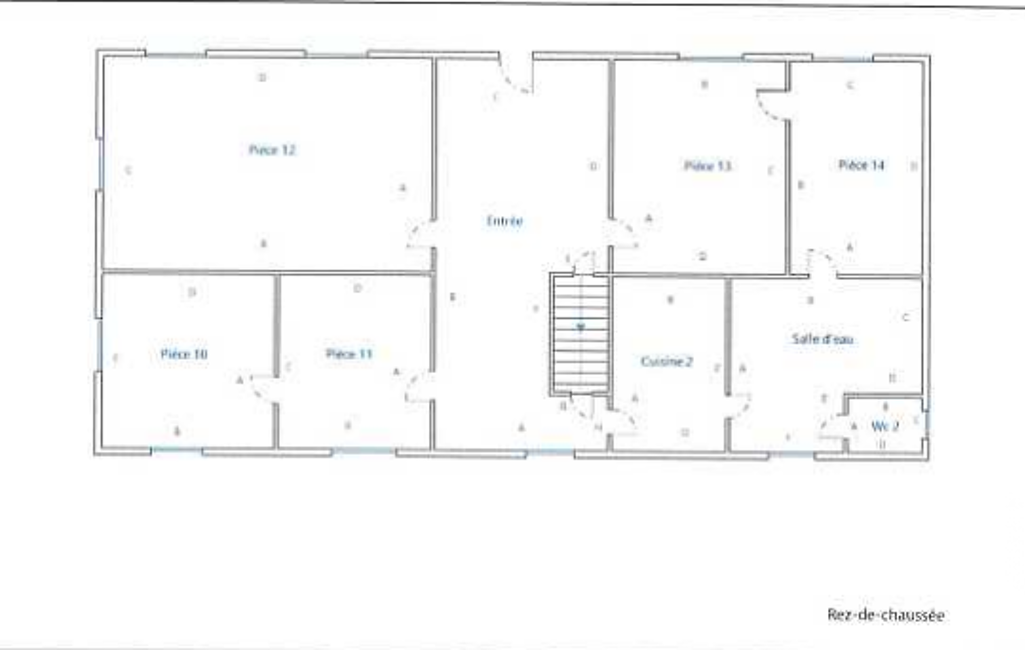
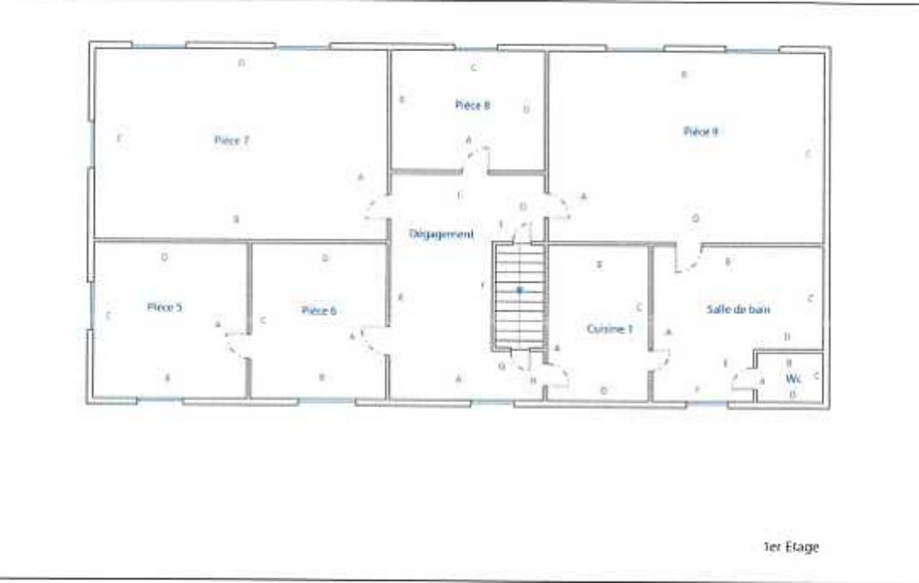
iad France - Maude Ruggeri vous propose: Située au cOEur de Guebwiller, cette maison d’environ 180 m² offre un fort potentiel d’aménagement. Idéale pour un investisseur ou une famille souhaitant s’y installer, elle peut être reconfigurée en plusieurs appartements ou transformée en un grand logement familial avec de beaux volumes.
Les atouts :
Volumes généreux avec une belle hauteur sous plafond
Plus de 180 m² habitables à repenser selon vos projets
Grand parking gratuit situé juste à côté
Proximité immédiate des commerces, écoles et services
Des travaux complets sont à prévoir pour remettre le bien aux normes et créer un espace de vie entièrement rénové. Ce bien brut constitue une base idéale pour un projet locatif ou résidentiel.
À noter :
Pas d’espace extérieur privatif (ni jardin, ni cour)
Pas de garage ni d’emplacement privé, mais stationnement aisé sur un grand parking à proximité immédiate
Emplacement pratique et central à Guebwiller, proche de toutes les commodités.
Honoraires d'agence à la charge du vendeur.
Bien non soumis au DPE. Les informations sur les risques auxquels ce bien est exposé, y compris l'obligation légale de débroussaillement, sont disponibles sur le site Géorisques : http://www.georisques.gouv.fr.
La présente annonce immobilière a été rédigée sous la responsabilité éditoriale de Mme Maude Ruggeri mandataire indépendant en immobilier (sans détention de fonds), agent commercial de la SAS I@D France immatriculé au RSAC de Colmar sous le numéro 931169759, titulaire de la carte de démarchage immobilier pour le compte de la société I@D France SAS.
Mandat : 1755328
Diagnostic de Performance Énergétique (DPE)
Plus d'informations
-
Descriptif
- Cave
- Nbre. d'étages : 3
- Nb. de pièces : 10
-
Conditions
- Honoraires à charge de : vendeur
-
Superficies
- Surface habitable : 180 m²
Localisation
Contactez nous
Pour plus d'informations sur cette annonce, n'hésitez pas à nous contacter