Vente
Appartement
à
Thézan Lès Béziers
347 000 €
Thézan Lès Béziers (34490)
iad France - Alex Bourgeois (07 85 19 90 20) vous propose : A Thézan-les-Béziers, dans un immeuble de trois étages, composé de trois appartement.
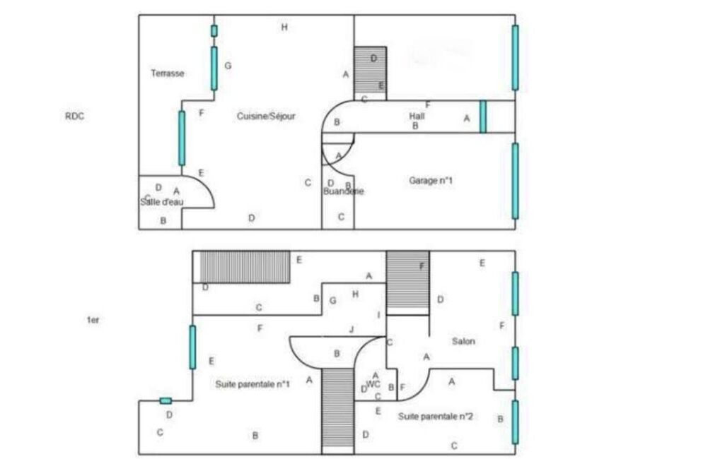
Idéalement situé en plein centre du village. Venez découvrir ce jolie appartement Duplex de 4 pièces d’une surface de 120m ²
Au rez de chaussée, il offre une grande pièce de vie avec cuisine ouverte totalement aménagée et équipée, une baie vitrée vous donnera accès à une terrasse de 11m ² toujours au RDC vous trouverez une salle d'eau avec ses WC , une buanderie, un garage de 17m ² attenant et communiquant avec l'appartement.
Sur la partie supérieur deux suite parentale de 22m ² chacune, un coin salon de 20m ² avec la possibilité de le transformer facilement en chambre supplémentaire.
Entièrement rénové, il bénéficie de la climatisation réversible dans l'ensemble des pièces, volet roulant électrique ainsi que la fibre optique.
Pour une visite ou toute information complémentaire je vous laisse le soin de me contacter.
Honoraires d’agence à la charge du vendeur.Information d'affichage énergétique sur ce bien : classe ENERGIE A indice 96 et classe CLIMAT A indice 2. Les informations sur les risques auxquels ce bien est exposé sont disponibles sur le site Géorisques : www.georisques.gouv.fr. La présente annonce immobilière a été rédigée sous la responsabilité éditoriale de M. Alex Bourgeois EI (ID 67581), mandataire indépendant en immobilier (sans détention de fonds), agent commercial de la SAS I@D France immatriculé au RSAC de BEZIERS sous le numéro 911580603, titulaire de la carte de démarchage immobilier pour le compte de la société I@D France SAS.Le présent bien est commercialisé dans le cadre d'une délégation de mandat.
Retrouvez tous nos biens sur notre site internet. www.iadfrance.fr
Mandat : 1928432
Diagnostic de Performance Énergétique (DPE)
Plus d'informations
-
Descriptif
- Nbre. de chambres : 3
- Nb. de pièces : 4
-
Equipement
- Climatisation
-
Conditions
- Honoraires à charge de : vendeur
-
Superficies
- Surface habitable : 120 m²
Localisation
Contactez nous
Pour plus d'informations sur cette annonce, n'hésitez pas à nous contacter