Vente
Appartement
à
Eybens
177 000 €
Eybens (38320)
iad France - Aurélie Georgere (06 16 51 86 81) vous propose : DERNIERS LOTS DISPONIBLES – Studio/1P NEUF AVEC TERRASSE DE 8,8m2 environ – VUE VERCORS
Livraison prochaine à l'automne 2026
Résidence PREMIUM avec ascenseur, adapté PMR, secteur calme et résidentiel
Frais de notaire réduit et éligible PTZ (prêt à taux zéro)
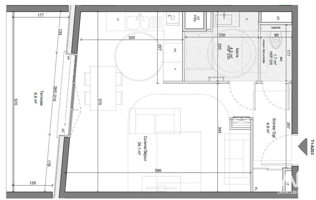
Dans les hauteurs d’Eybens, découvrez ce grand Studio de 37,1 m² environ. Il est situé au 2ème étage d’une résidence haut de gamme sécurisée comprenant 3 étages. La résidence est conforme à la réglementation RT 2012. Vous profiterez d’une terrasse abritée de 8,8 m² environ, orientée Sud-Ouest, avec une vue sur le Vercors.
Un agencement pour profiter de l'espace :
-une entrée avec placard,
-une pièce séjour/cuisine lumineuse de 26,1 m² environ avec accès à la terrasse,
-une salle de bains confortable de 4,5 m² environ avec douche receveur ultra-plat
-des WC séparés et suspendus de 1,7 m² environ, cloison entre WC et salle d'eau démontable.
Des prestations qui apportent confort et qualité : chauffage individuel gaz (chaudière à condensation), menuiseries PVC double vitrage, volets roulants motorisés, isolation thermique et phonique renforcée.
Des finitions de qualité: carrelage 60×60 cm, salle de bains équipée d'un meuble design avec miroir et applique LED.
La cuisine sera à aménager selon vos préférences.
Au cOEur d'une résidence de 43 appartements sécurisée et connectée: porte palière blindée, vidéophone couleur, fibre optique, option logement connecté disponible, ascenseur, local vélos/motos sécurisé, espaces verts paysagers, portail coulissant motorisé.
Des places de parkings privatives intérieures (avec option borne de recharge pour véhicule électrique) ainsi qu'un garage en sous-sol, un cellier et/ ou une cave sont disponibles en supplément du prix de vente.
Un emplacement idéal : un quartier recherché, proche du centre-bourg tout en bénéficiant d'un environnement boisé. A une dizaine de minutes à pied, vous trouverez : des commerces de proximité (boulangerie, boucherie, fromagerie, café, caviste, etc.) et l'arrêt du bus Chrono C4 rejoignant Grenoble (en direction de l'arrêt Victor Hugo).
Profitez d'un cadre de vie privilégié à deux pas d’un chemin de randonnée. Diverses activités sportives et culturelles sont proposées par la ville d'Eybens à tout âge. Vous trouverez à proximité un conservatoire de musique et de danse, deux salles de spectacles, une piscine municipale ouverte l'été. La station de ski de Chamrousse est à moins de 40 minutes en voiture. Pour les amateurs, deux golfs sont à proximité.
Contactez moi pour plus d'informations.
Une visite de chantier est possible sur rendez-vous.
T3 et T4 également disponibles dans la même résidence.
Honoraires d’agence à la charge du vendeur. Bien non soumis au DPE. Les informations sur les risques auxquels ce bien est exposé sont disponibles sur le site Géorisques : www.georisques.gouv.fr. La présente annonce immobilière a été rédigée sous la responsabilité éditoriale de Mlle Aurélie Georgere EI (ID 91856), mandataire indépendant en immobilier (sans détention de fonds), agent commercial de la SAS I@D France immatriculé au RSAC de GRENOBLE sous le numéro 993974534, titulaire de la carte de démarchage immobilier pour le compte de la société I@D France SAS.
Retrouvez tous nos biens sur notre site internet. www.iadfrance.fr
Mandat : 1969436-2
Diagnostic de Performance Énergétique (DPE)
Plus d'informations
-
Equipement
- Câble TV
- Placards
- Chauffage : individuel gaz radiateur
- Interphone
-
Descriptif
- Terrasse
- Ascenseur
- Nb. de pièces : 1
-
Conditions
- Honoraires à charge de : vendeur
-
Superficies
- Surface habitable : 37 m²
Localisation
Contactez nous
Pour plus d'informations sur cette annonce, n'hésitez pas à nous contacter