Annonce détaillée

Vente
Loft à Paris
2 080 000 

Détails du bien

Pièce(s)
5 pièces
Salle(s) de bain
3
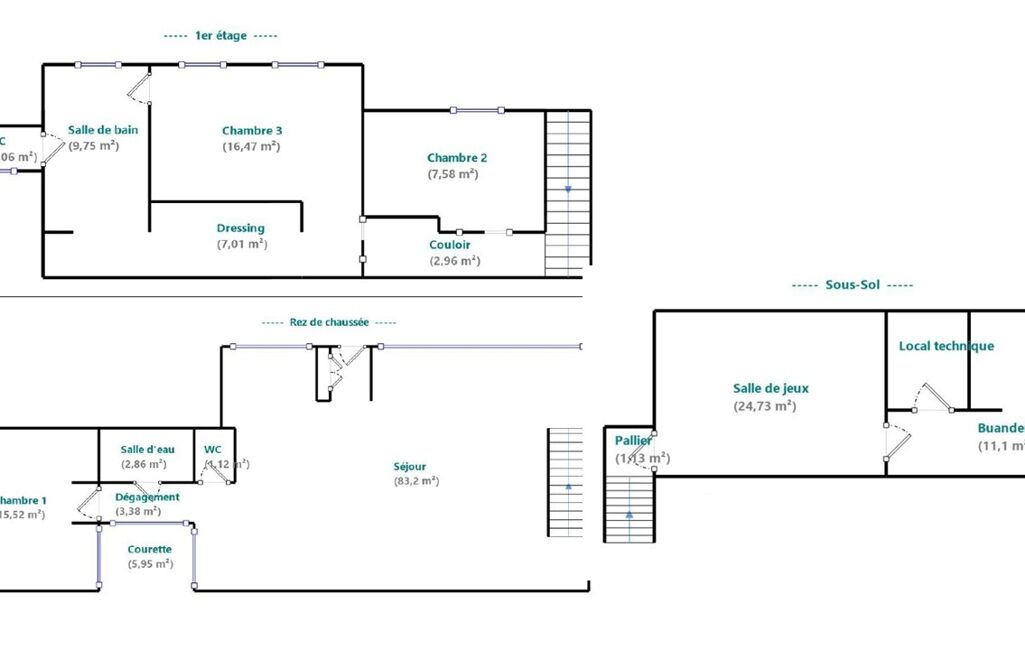
Surface
196 m²
Surface terrain
-
Orientation
-

Plus d'informations

  • Descriptif
    • Cave
    • Nbre. d'étages : 4
    • Nbre. de chambres : 3
    • Nb. de pièces : 5
  • Equipement
    • Digicode
    • Chauffage : individuel gaz
    • Interphone
  • Loi ALUR
    • Copropriété
    • Nombre de lots de la copropriété : 130
    • Moyenne de la quote part(an) : 8 000 €
  • Etat
    • Année de construction : 1880
  • Conditions
    • Honoraires à charge de : vendeur
  • Superficies
    • Surface habitable : 196 m²

Localisation

Contactez nous

Pour plus d'informations sur cette annonce, n'hésitez pas à nous contacter

Sophie Bovy

Annonce 271 / 76431