Vente
Local commercial
à
Lyon
656 000 €
Lyon (69003)
iad France - Guillaume Gibeaux (07 88 47 13 18) vous propose : Idéalement situé au cOEur du quartier Préfecture, à quelques mètres du Palais de justice et de l'avenue de Saxe :
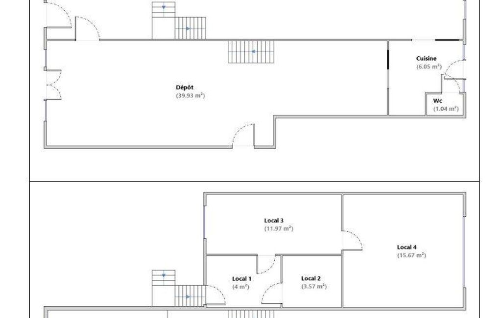
Local commercial situé en rez-de-chaussée 160m2 environ, composé d'une belle surface de plain-pied + deux mezzanines faisant office de bureaux et lieu de stockage. Hauteur max. sous plafond 4.70 mètres.
Deux grandes caves complètent ce bien.
Actuellement 2 lots réunis. Possibilité de rediviser facilement (deux entrées existantes)
Accessible PMR. Grand linéaire de vitrine, idéal professions commerciales ou libérales (médecins, avocats, etc)
Pas de restauration possible.
Information d'affichage énergétique sur le bien associé à cette annonce : DPE NS indice et GES NS indice .La présente annonce immobilière a été rédigée sous la responsabilité éditoriale de M. Guillaume Gibeaux (ID 79774), Agent Commercial mandataire en immobilier immatriculé au Registre Spécial des Agents Commerciaux (RSAC) du Tribunal de Commerce de LYON sous le numéro 904153798
Retrouvez tous nos biens sur notre site internet. www.iadfrance.fr
Mandat : 1883658
Diagnostic de Performance Énergétique (DPE)
Plus d'informations
-
Conditions
- Honoraires à charge de : vendeur
-
Superficies
- Surface habitable : 157 m²
Localisation
Contactez nous
Pour plus d'informations sur cette annonce, n'hésitez pas à nous contacter