Vente
Maison
à
Vernouillet
255 000 €
Vernouillet (28500)
iad France - Julie Toussaint vous propose: En exclusivité dans un village à 5’ de Dreux et Vernouillet : amoureux du charme de l’ancien, c’est la maison qu’il vous faut ! Ses 3 chambres, son bureau et sa dépendance vous offriront des espaces pour tous les membres de la famille !
* Vidéo de présentation disponible en cliquant sur le bouton vidéo *
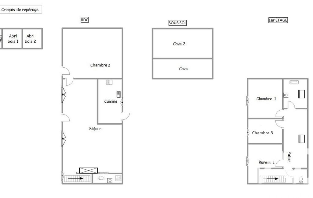
Cette maison de 115m2 de surface habitable comprend au rez-de-chaussée : un spacieux séjour de 39m2 avec une cheminée insert et beaucoup de charme (des tomettes, poutres, et pierres au mur), une cuisine semi-ouverte aménagée (non équipée), une salle d'eau avec WC, et une extension de 25m2 avec une porte indépendante mais aussi un accès depuis la maison (espace chaufferie, buanderie, et utilisation à définir en fonction des usages : chambre, bureau, salle de jeu, activité professionnelle...).
À l'étage, vous disposerez de 3 chambres (dont une de moins de 9m2 mais faisant actuellement office de chambre), une salle de bains, et des WC indépendants.
En supplément : une dépendance de 23m2 au sol avec une pièce de vie avec poêle à bois et un coin salle d’eau (et chambre à l’étage, à aménager), idéale pour un adolescent ou une profession libérale.
La maison est bâtie sur une jolie parcelle clôturée de 1152m2 avec une cour gravillonnée à l'avant permettant de stationner plusieurs véhicules et, à l'arrière : un jardin sans vis-à-vis, avec terrasse en bois, terrain de pétanque, et piscine hors-sol.
Vous disposerez d’espaces de stockages avec une cave voutée, et un atelier de 19m2.
Informations complémentaires : fenêtres en double vitrage PVC (stores manuels au RDC et électrique à l’étage), chaudière à granulés (2025), ballon thermodynamique (2025), cheminée insert (2021), VMC hygroréglable (2025), tableau électrique refait (2025), exposition Sud à l’avant de la maison, fibre optique, fosse septique non conforme.
Les points forts :
-Localisation (5’ N12, et 5’ de Vernouillet et Dreux),
-Maison avec beaucoup de charme,
-Travaux récents : chaudière à granulés / ballon thermodynamique / VMC / tableau électrique / ravalement récent,
-Fenêtre double vitrage PVC,
-DPE C
-Du stockage,
-Jardin sans vis-à-vis
Avis aux confrères, je pratique l’interagence, contactez-moi pour organiser une visite avec vos clients.
Honoraires d'agence à la charge du vendeur.
Information d'affichage énergétique sur ce bien : classe ENERGIE C indice 159 et classe CLIMAT A indice 4. Les informations sur les risques auxquels ce bien est exposé, y compris l'obligation légale de débroussaillement, sont disponibles sur le site Géorisques : http://www.georisques.gouv.fr.
La présente annonce immobilière a été rédigée sous la responsabilité éditoriale de Mme Julie Toussaint mandataire indépendant en immobilier (sans détention de fonds), agent commercial de la SAS I@D France immatriculé au RSAC de CHARTRES sous le numéro 908025901, titulaire de la carte de démarchage immobilier pour le compte de la société I@D France SAS.
Mandat : 1972612
Diagnostic de Performance Énergétique (DPE)
Plus d'informations
-
Descriptif
- Terrasse
- Nbre. d'étages : 2
- Nbre. de chambres : 3
- Nb. de pièces : 7
-
Superficies
- Superficie terrain : 1152 m²
- Surface habitable : 138 m²
-
Conditions
- Honoraires à charge de : vendeur
Localisation
Contactez nous
Pour plus d'informations sur cette annonce, n'hésitez pas à nous contacter