Vente
Maison
à
Villemomble
424 000 €
Villemomble (93250)
iad France - Julie Fradin vous propose: **Jolie MEUNIERE de 99 m2 (surface au sol 171 m2) avec un grand jardin privatif**
VIDEO disponible sur demande
ENORME POTENTIEL pour cette maison!
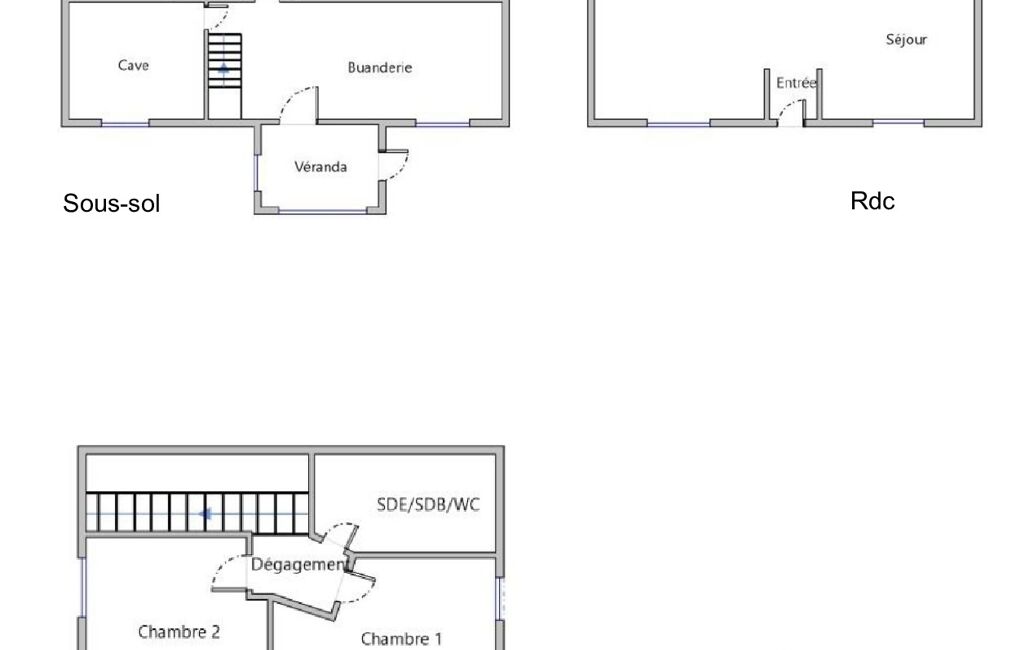
Sur 3 niveaux, cette maison familiale est composée de :
- 2 chambres (de 17m2 et 11 m2 au sol) au 1er étage avec salle de bain et wc
- 1 chambre en sous-sol de 12 m2 avec salle d'eau et wc
- 1 salle à manger avec grande cuisine ouverte d'une surface totale de 37 m2
- 1 salon de 15 m2
- une véranda, une buanderie, un atelier et une cave
Pour profitez des extérieurs, vous disposez d'un terrain d'une surface cadastrale de 467 m2, d'un espace jardin avec terrasse et d'un abri de jardin.
Pour vos véhicules, vous disposez également d'un grand garage fermé et d'un stationnement derrière le portail motorisé.
Cette maison dispose de BEAUX VOLUMES réaménageables selon vos souhaits et modes de vie.
Le tram T4 est à proximité.
Contactez-moi pour plus de renseignements et organiser une visite.
Honoraires d'agence à la charge du vendeur.
Information d'affichage énergétique sur ce bien : classe ENERGIE E indice 329 et classe CLIMAT E indice 61. Les informations sur les risques auxquels ce bien est exposé, y compris l'obligation légale de débroussaillement, sont disponibles sur le site Géorisques : http://www.georisques.gouv.fr.
La présente annonce immobilière a été rédigée sous la responsabilité éditoriale de Mme Julie Fradin mandataire indépendant en immobilier (sans détention de fonds), agent commercial de la SAS I@D France immatriculé au RSAC de Créteil sous le numéro 925314528, titulaire de la carte de démarchage immobilier pour le compte de la société I@D France SAS.
Mandat : 1817163
Diagnostic de Performance Énergétique (DPE)
Plus d'informations
-
Descriptif
- Cave
- Nbre. d'étages : 3
- Nbre. de chambres : 3
- Nb. de pièces : 5
-
Superficies
- Superficie terrain : 467 m²
- Surface habitable : 99 m²
-
Equipement
- Chauffage : gaz radiateur
-
Conditions
- Honoraires à charge de : vendeur
Localisation
Contactez nous
Pour plus d'informations sur cette annonce, n'hésitez pas à nous contacter