Vente
Terrain
à
Vallangoujard
192 000 €
Vallangoujard (95810)
iad France - Stéphanie Salomon vous propose: RARE OPPORTUNITE DANS LE VEXIN : Terrain à bâtir de 2315m² à Vallangoujard.
Bienvenue à Vallangoujard, sur un terrain à bâtir de 2315m² et d'une façade de 34 mètres (libre de constructeur).
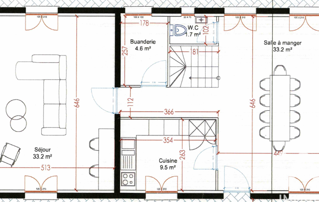
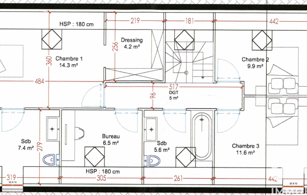
Ce projet est destiné à la construction d'une maison individuelle de type longère d'une superficie de 146 m². Situé dans un environnement calme et arboré, ce terrain est une opportunité rare en plein cOEur du Vexin, dans un cadre naturel préservé, idéal pour les amoureux de la tranquillité et de la nature.
Le terrain est raccordé aux réseaux d'eau et d'électricité.
Contactez-nous dès aujourd'hui pour plus d'informations et pour concrétiser votre projet de construction sur ce terrain idyllique.
Honoraires d'agence à la charge du vendeur.
Bien non soumis au DPE. Les informations sur les risques auxquels ce bien est exposé, y compris l'obligation légale de débroussaillement, sont disponibles sur le site Géorisques : http://www.georisques.gouv.fr.
La présente annonce immobilière a été rédigée sous la responsabilité éditoriale de Mme Stéphanie Salomon mandataire indépendant en immobilier (sans détention de fonds), agent commercial de la SAS I@D France immatriculé au RSAC de NANTERRE sous le numéro 843031980, titulaire de la carte de démarchage immobilier pour le compte de la société I@D France SAS.
Mandat : 1966856
Diagnostic de Performance Énergétique (DPE)
Plus d'informations
-
Conditions
- Honoraires à charge de : vendeur
-
Superficies
- Superficie terrain : 2315 m²
Localisation
Contactez nous
Pour plus d'informations sur cette annonce, n'hésitez pas à nous contacter