Vente
Maison
à
Les Mathes
399 000 €
Les Mathes (17570)
iad France - Muriel DUBUC vous propose: Annonce :
LES MATHES – LA PALMYRE | PROPRIÉTÉ DE CHARME PLAIN-PIED | 4 CHAMBRES | 2 SALLES D’EAU | GARAGE XXL | TERRAIN BOISÉ +1600 m²
À seulement 800 m des commerces et 4 km des plages de La Palmyre, avec un accès immédiat aux pistes cyclables menant à l’océan et à la forêt, découvrez cette superbe maison de plain-pied nichée dans un environnement calme et privilégié.
Implantée sur un magnifique terrain clos et arboré de chênes de plus de 1 650 m², cette propriété offre un cadre de vie rare, idéal en résidence principale comme secondaire.
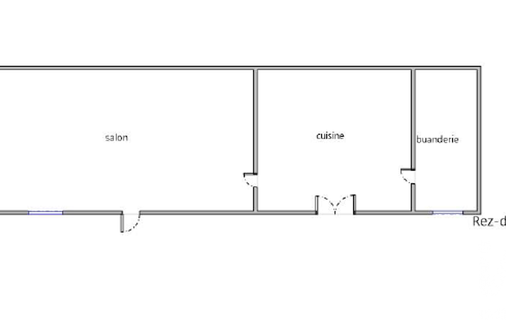
Dès l’entrée, vous serez séduits par un bel espace de vie lumineux d’environ 36 m², sublimé par une cheminée avec insert récent (2024) et ouvert sur une terrasse couverte exposée ouest, parfaite pour prolonger vos soirées d’été en toute convivialité. La cuisine américaine, entièrement aménagée et équipée (refaite en 2023), complète harmonieusement cet espace.
L’espace nuit se compose de :
3 chambres confortables avec rangements
Une salle d’eau moderne avec douche à l’italienne, ouverte sur un agréable patio intimiste, idéal pour accueillir un jacuzzi
En complément, une chambre d’amis indépendante avec sa propre salle d’eau, WC offre un espace parfait pour recevoir famille et amis en toute autonomie.
Un atout rare : un grand garage de près de 50 m², parfaitement adapté pour accueillir bateau, camping-car ou plusieurs véhicules.
Prestations :
Plain-pied fonctionnel et lumineux
Chauffage central électrique
Insert récent
Cuisine rénovée
Terrain clos et sans vis-à-vis
Environnement boisé et recherché
Un bien clé en main, où il ne vous reste plus qu’à poser vos valises et profiter des plaisirs de la côte, entre balades en forêt et journées en bord de mer.
Honoraires d'agence à la charge du vendeur.
Information d'affichage énergétique sur ce bien : classe ENERGIE F indice 344 et classe CLIMAT C indice 11. Les informations sur les risques auxquels ce bien est exposé, y compris l'obligation légale de débroussaillement, sont disponibles sur le site Géorisques : http://www.georisques.gouv.fr.
La présente annonce immobilière a été rédigée sous la responsabilité éditoriale de Mme Muriel DUBUC mandataire indépendant en immobilier (sans détention de fonds), agent commercial de la SAS I@D France immatriculé au RSAC de LA ROCHELLE sous le numéro 833590953, titulaire de la carte de démarchage immobilier pour le compte de la société I@D France SAS.
Mandat : 2013604
Diagnostic de Performance Énergétique (DPE)
Plus d'informations
-
Equipement
- Cheminée
- Chauffage : electrique radiateur
-
Superficies
- Superficie terrain : 1653 m²
- Surface habitable : 111 m²
-
Conditions
- Honoraires à charge de : vendeur
-
Descriptif
- Nb. de pièces : 5
Localisation
Contactez nous
Pour plus d'informations sur cette annonce, n'hésitez pas à nous contacter