Vente
Maison
à
Anet
269 000 €
Anet (28260)
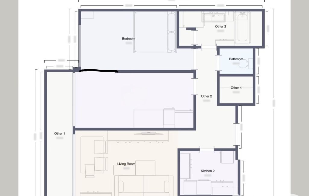
iad France - Morgane Alexis vous propose: À La Couture-Boussey, à seulement 5 minutes d’Ézy-sur-Eure et 10 minutes d’Anet, découvrez cette maison familiale d’environ 128 m², rénovée avec soin, offrant de beaux volumes et un cadre de vie calme et agréable.
Dès l’entrée, laissez-vous séduire par une spacieuse pièce de vie d’environ 60 m², équipée d’un poêle à granulés et ouverte sur une cuisine américaine entièrement aménagée et équipée.
Cet espace convivial s’ouvre directement sur une terrasse couverte, idéale pour profiter des beaux jours, avec une vue dégagée sur la piscine creusée.
Le rez-de-chaussée propose également 2 chambres, un WC indépendant et une salle d’eau avec coin buanderie, offrant une vraie vie de plain-pied.
À l’étage, une pièce palière dessert 2 belles chambres ainsi qu’un WC indépendant, avec la possibilité de créer une seconde salle d’eau selon vos besoins.
À l’extérieur, vous bénéficierez d’un garage avec grenier aménagé, dans lequel se trouve une chambre, parfait pour créer un espace indépendant (ado, bureau, invités). Un carport fermé permet également de stationner ou de stocker à l’abri.
Le jardin de 704 m², entièrement clos, accueille également un abri avec électricité, abritant le local technique de la piscine (environ 19 m²).
Côté confort et économies, la maison est équipée de panneaux solaires, générant un remboursement annuel d’environ 1 280 €.
Une maison qui allie fonctionnalité, confort moderne et proximité des commodités, idéale pour une famille.
++ Ses atouts ++ : environnement calme, rénovation récente, grande pièce de vie, ballon d’eau chaude neuf, fibre optique, volets roulants électriques, exposition sud-ouest, poêle à granulé permettant de chauffer les espaces, panneaux solaires.
Une visite virtuelle est proposée : n’hésitez pas à la découvrir pour vous projeter pleinement dans ces beaux espaces.
Avis aux confrères : je pratique l'interagence, contactez-moi pour organiser une visite avec vos clients.
Honoraires d'agence à la charge du vendeur.
Information d'affichage énergétique sur ce bien : classe ENERGIE C indice 158 et classe CLIMAT A indice 5. Les informations sur les risques auxquels ce bien est exposé, y compris l'obligation légale de débroussaillement, sont disponibles sur le site Géorisques : http://www.georisques.gouv.fr.
La présente annonce immobilière a été rédigée sous la responsabilité éditoriale de Mme Morgane Alexis mandataire indépendant en immobilier (sans détention de fonds), agent commercial de la SAS I@D France immatriculé au RSAC de Versailles sous le numéro 951113935, titulaire de la carte de démarchage immobilier pour le compte de la société I@D France SAS.
Mandat : 1966752
Diagnostic de Performance Énergétique (DPE)
Plus d'informations
-
Descriptif
- Terrasse
- Nbre. d'étages : 1
- Nbre. de chambres : 5
- Nb. de pièces : 7
-
Equipement
- Digicode
- Chauffage : electrique radiateur
-
Superficies
- Superficie terrain : 704 m²
- Surface habitable : 128 m²
-
Extérieur
- Piscine
-
Etat
- Année de construction : 1988
-
Conditions
- Honoraires à charge de : vendeur
Localisation
Contactez nous
Pour plus d'informations sur cette annonce, n'hésitez pas à nous contacter