Vente
Maison
à
Saint-Molf
600 000 €
Saint-Molf (44350)
iad France - Leïla Mahour Pelon vous propose: Le bien se compose d'une Maison principale de 150m2 avec avec 2 habitations exploitées en gîtes saisonnier sur plus de 2350 m² de terrain – SAINT-MOLF
Située dans un environnement calme et verdoyant sur la commune de Saint-Molf, cette propriété vous offre une multitude de possibilités : résidence principale, secondaire, projet familial multi-generationnel, activité libérale, développement touristique ou lieu de création artistique.
Sur une parcelle de plus de 2200 m², découvrez une maison principale de 150 m² comprenant :
•une entrée
•un vaste salon-séjour lumineux
•une cuisine indépendante (possibilité d'ouverture sur le salon)
•une salle d’eau, wc
•un bureau
•une chambre de plain-pied
Une buanderie et un atelier complètent cette partie de la maison.
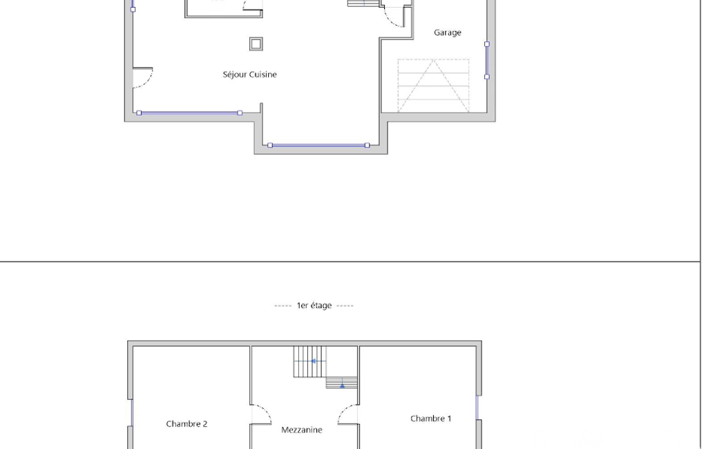
À l’étage : 3 chambres , un bureau, ainsi qu’une salle de bain, et wc.
Concernant l'extérieur: Grande terrasse en bois exposée SUD, 2 cabanons, un poulailler et une cabane dans les arbres pour les enfants !
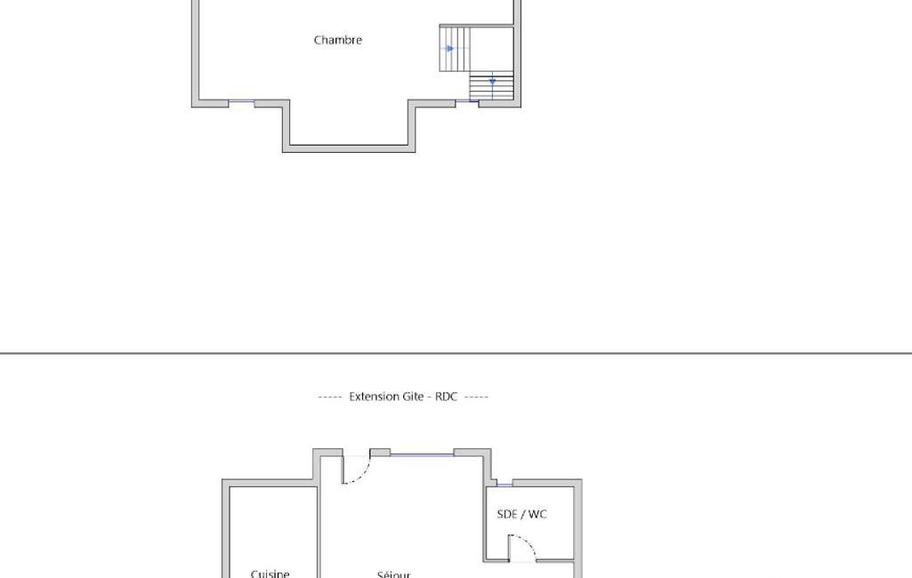
Attenant à la maison, un gîte de 45 m² avec entrée indépendante et un jardin.
Il comprend une pièce de vie avec cuisine, une salle d’eau et une chambre. Ce gîte peut facilement être relié à la maison principale selon votre projet.
Un second gîte indépendant de 62 m² complète cette propriété. Il se compose :
•d’une pièce de vie avec cuisine ouverte
•de WC et d’une salle d’eau au rez-de-chaussée
•d’un garage
À l’étage : 2 chambres et une mezzanine.
Les atouts :
•Fort potentiel locatif (un gite classé 3 étoiles Clé Vacances,)Chiffre d'affaire disponible
•Grand terrain arboré avec des arbres fruitiers
•Cadre de vie paisible, à proximité des plages et des marais salants
Une propriété rare sur le secteur, idéale pour un projet de vie multiple ou pour concilier habitation et activité.
Honoraires d'agence à la charge du vendeur.
Information d'affichage énergétique sur ce bien : classe ENERGIE C indice 178 et classe CLIMAT A indice 5. Les informations sur les risques auxquels ce bien est exposé, y compris l'obligation légale de débroussaillement, sont disponibles sur le site Géorisques : http://www.georisques.gouv.fr.
La présente annonce immobilière a été rédigée sous la responsabilité éditoriale de Mme Leïla Mahour Pelon mandataire indépendant en immobilier (sans détention de fonds), agent commercial de la SAS I@D France immatriculé au RSAC de SAINT NAZAIRE sous le numéro 889126959, titulaire de la carte de démarchage immobilier pour le compte de la société I@D France SAS.
Mandat : 1968404
Diagnostic de Performance Énergétique (DPE)
Plus d'informations
-
Descriptif
- Terrasse
- Nbre. d'étages : 2
- Nbre. de chambres : 4
- Nb. de pièces : 6
-
Superficies
- Superficie terrain : 2350 m²
- Surface habitable : 195 m²
-
Equipement
- Chauffage : electrique radiateur
-
Etat
- Année de construction : 1975
-
Conditions
- Honoraires à charge de : vendeur
Localisation
Contactez nous
Pour plus d'informations sur cette annonce, n'hésitez pas à nous contacter