Vente
Maison
à
Quimperlé
435 000 €
Quimperlé (29300)
iad France - Lauriane Le Cam vous propose: Maison de 200m² avec jardin à Quimperlé
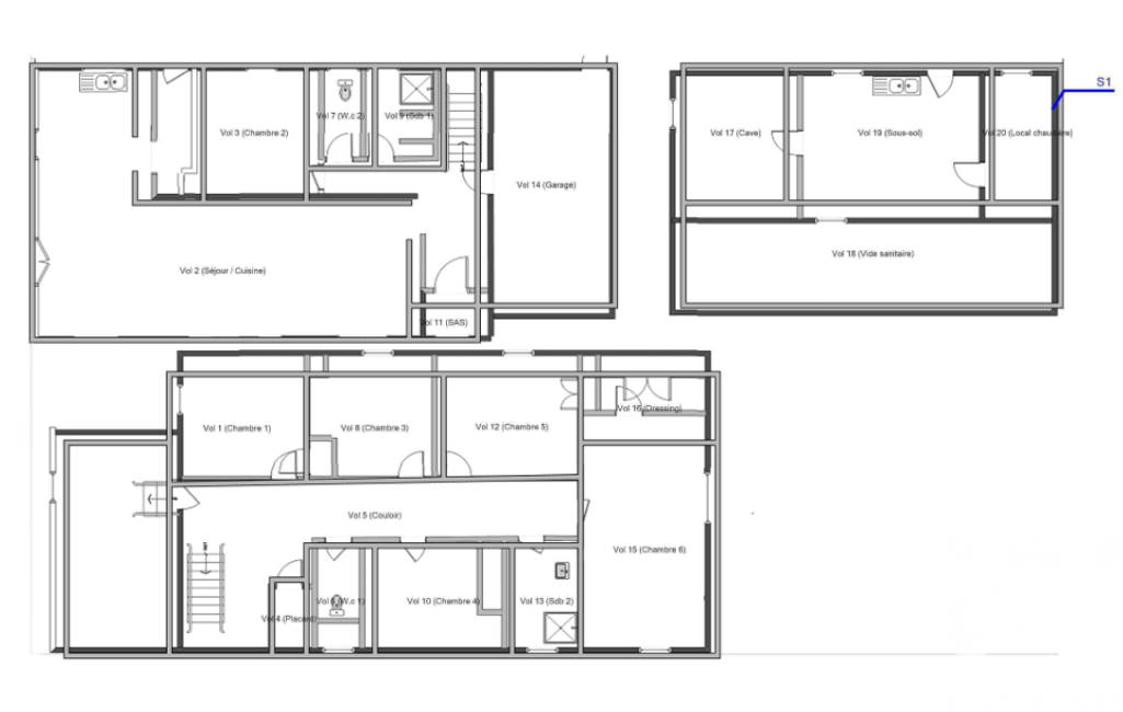
Cette superbe maison de caractère entièrement rénovée vous offre un cadre de vie exceptionnel à Quimperlé: proche des écoles, de toutes les commodités et commerces. Avec une surface habitable de 202m² répartie sur 2 étages, cette maison spacieuse et lumineuse de 1968 est idéale pour accueillir une famille.
Au rez-de-chaussée: une entrée, un salon-séjour de plus de 60m² exposé sud-ouest, une cuisine aménagée et équipée, une chambre, une salle d'eau et un WC séparé.
À l'étage: quatre chambres aux beaux volumes (12 à 17m²), un bureau, une pièce pouvant devenir une cinquième chambre, une salle d'eau et un WC séparé.
Côté extérieurs: large terrasse et jardin de plus de 500m². Un garage de 30m² avec borne de recharge pour véhicules électriques, un sous-sol avec une partie vide sanitaire complètent la maison.
Côté équipements et confort: fibre optique, récent système de chauffage au gaz naturel et un poêle à granulés assurent une qualité de vie optimale.
Ne manquez pas l'opportunité de devenir propriétaire d'une maison alliant charme, espace et modernité. Contactez-nous dès maintenant pour organiser une visite!
Honoraires d'agence à la charge du vendeur.
Information d'affichage énergétique sur ce bien : classe ENERGIE C indice 179 et classe CLIMAT C indice 29. Les informations sur les risques auxquels ce bien est exposé, y compris l'obligation légale de débroussaillement, sont disponibles sur le site Géorisques : http://www.georisques.gouv.fr.
La présente annonce immobilière a été rédigée sous la responsabilité éditoriale de Mme Lauriane Le Cam mandataire indépendant en immobilier (sans détention de fonds), agent commercial de la SAS I@D France immatriculé au RSAC de LORIENT sous le numéro 925227100, titulaire de la carte de démarchage immobilier pour le compte de la société I@D France SAS.
Mandat : 1884134
Diagnostic de Performance Énergétique (DPE)
Plus d'informations
-
Equipement
- Câble TV
- Cheminée
- Placards
- Chauffage : gaz radiateur
-
Descriptif
- Nbre. d'étages : 2
- Nbre. de chambres : 6
- Nb. de pièces : 7
-
Superficies
- Superficie terrain : 528 m²
- Surface habitable : 202 m²
-
Etat
- Année de construction : 1968
-
Conditions
- Honoraires à charge de : vendeur
Localisation
Contactez nous
Pour plus d'informations sur cette annonce, n'hésitez pas à nous contacter