Vente
Ferme
à
Milhaud
130 000 €
Milhaud (30540)
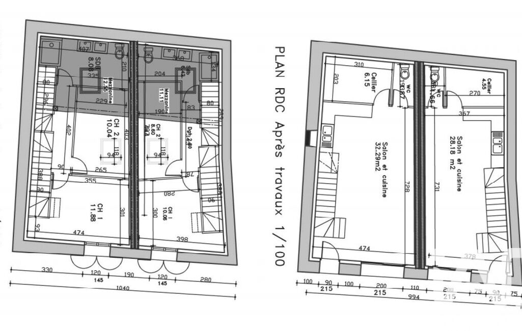
iad France - Laurent Jégat vous propose: Grange à aménager de 100 m2 au sol, et étage de même surface. Potentiel de 180 m2 habitables aménageables. Jardinet de 65 m2, toiture en très bon état. Permis de construire accepté et purgé pour 2 logements ( ce permis peut être modifié ). Viabilisé pour un logement. 2 places de parkings privatifs. Proche à pied du centre et des commerces.
Honoraires d'agence à la charge du vendeur.
Bien non soumis au DPE. Les informations sur les risques auxquels ce bien est exposé, y compris l'obligation légale de débroussaillement, sont disponibles sur le site Géorisques : http://www.georisques.gouv.fr.
La présente annonce immobilière a été rédigée sous la responsabilité éditoriale de M Laurent Jégat mandataire indépendant en immobilier (sans détention de fonds), agent commercial de la SAS I@D France immatriculé au RSAC de Nimes sous le numéro 480976158, titulaire de la carte de démarchage immobilier pour le compte de la société I@D France SAS.
Mandat : 1969172
Diagnostic de Performance Énergétique (DPE)
Plus d'informations
-
Superficies
- Superficie terrain : 160 m²
- Surface habitable : 180 m²
-
Etat
- Année de construction : 1900
-
Conditions
- Honoraires à charge de : vendeur
-
Descriptif
- Nb. de pièces : 6
Localisation
Contactez nous
Pour plus d'informations sur cette annonce, n'hésitez pas à nous contacter