Vente
Appartement
à
Saint-Paul-Lès-Dax
174 000 €
Saint-Paul-Lès-Dax (40990)
iad France - Cécile Bazerque vous propose: Saint-Paul-lès-Dax - T3 en rez de chaussée d'une belle maison d'époque, avec jardin privatif, cave et parking fermé, proche du Lac de Christus et des commerces.
Un appartement où l’on profite d’un extérieur comme dans une maison… tout en gardant la simplicité d’un appartement.
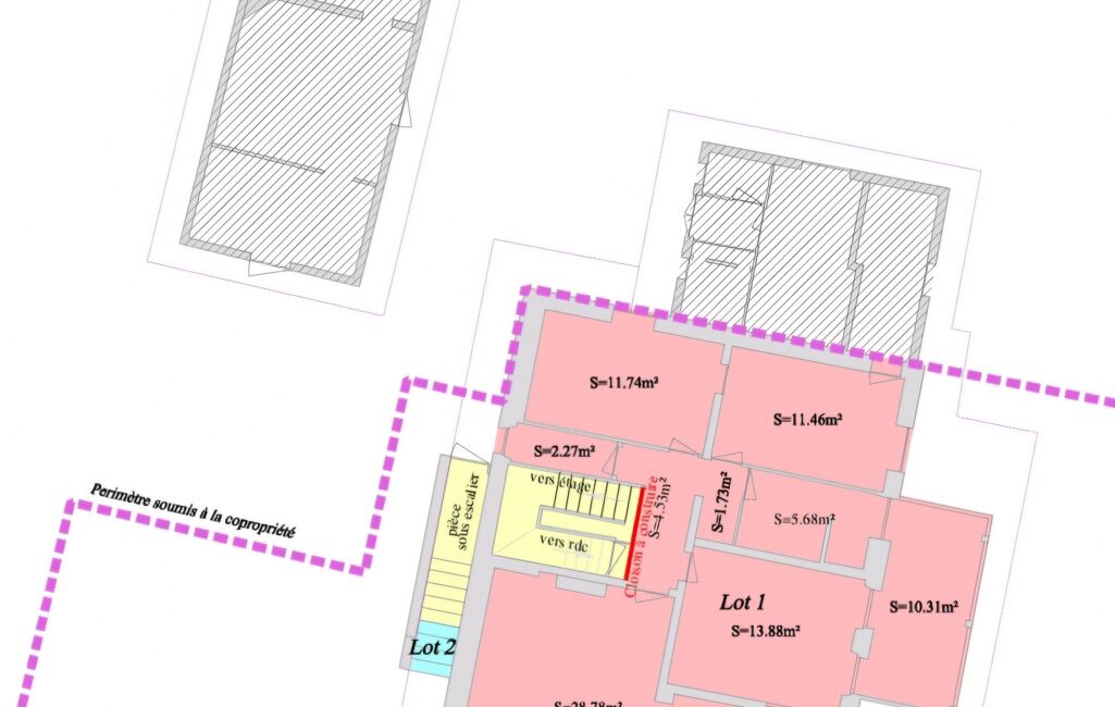
Ce T3 de plus de 80 m2 en rez-de-chaussée d'une maison de cachet, divisée en deux lots, offre une belle qualité de vie grâce à ses généreux espaces intérieurs et extérieurs.
La pièce de vie lumineuse et spacieuse, dotée d'une cheminée ouverte, est prolongée d'une cuisine indépendante
Deux chambres de belles dimensions, une salle d'eau et un WC séparé mais aussi une cave de près de 50 m2 complètent ce T3 au cachet certain.
En extérieur, un jardin privatif de près de 140 m², une agréable véranda et une place privative en parking fermé (gaine pour prise Véhicule Electrique , possibilité de 2eme parking en option) finiront de vous convaincre.
DPE : D
La presente annonce immobiliere vise 2 lots situés dans une copropriété de 9 lots au total et ne faisant l'objet d'aucune procédure en cours citée à l'article L. 721-1 du code de la construction et de l'habitation. Montant moyen mensuel de charges déclaré par le vendeur : 16.67€ par mois (soit 200 € annuel). Honoraires d'agence à la charge de l'acquéreur. Prix honoraires inclus : 174000 euros. Prix hors honoraires : 165000 euros. Honoraires TTC à la charge de l'acquéreur (5,45% du prix du bien hors honoraires) : 9000 euros.
Information d'affichage énergétique sur ce bien : classe ENERGIE D indice 249 et classe CLIMAT B indice 9. Les informations sur les risques auxquels ce bien est exposé, y compris l'obligation légale de débroussaillement, sont disponibles sur le site Géorisques : http://www.georisques.gouv.fr.
La présente annonce immobilière a été rédigée sous la responsabilité éditoriale de Mme Cécile Bazerque mandataire indépendant en immobilier (sans détention de fonds), agent commercial de la SAS I@D France immatriculé au RSAC de Dax sous le numéro 518235122, titulaire de la carte de démarchage immobilier pour le compte de la société I@D France SAS.
Mandat : 1974790
Diagnostic de Performance Énergétique (DPE)
Plus d'informations
-
Descriptif
- Terrasse
- Nbre. d'étages : 1
- Nbre. de chambres : 2
- Nb. Parking : 1
- Nb. de pièces : 3
-
Conditions
- Honoraires : 9 000 €
- Prix hors honoraires acquéreur : 165 000 €
- Honoraires à charge de : acquéreur
-
Loi ALUR
- Copropriété
- Nombre de lots de la copropriété : 9
- Moyenne de la quote part(an) : 200 €
-
Equipement
- Placards
- Chauffage : individuel electrique radiateur
-
Superficies
- Superficie terrain : 137 m²
- Surface habitable : 80 m²
-
Etat
- Année de construction : 1900
Localisation
Contactez nous
Pour plus d'informations sur cette annonce, n'hésitez pas à nous contacter