Vente
Duplex
à
Romainville
349 000 €
Romainville (93230)
iad France - Thierry Pichard vous propose: Romainville / Limite Les Lilas — Quartier Plateau — À 650m de Serge Gainsbourg (Les Lilas) et arrêts de bus (48, 129 et 318) très proches.
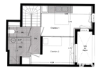
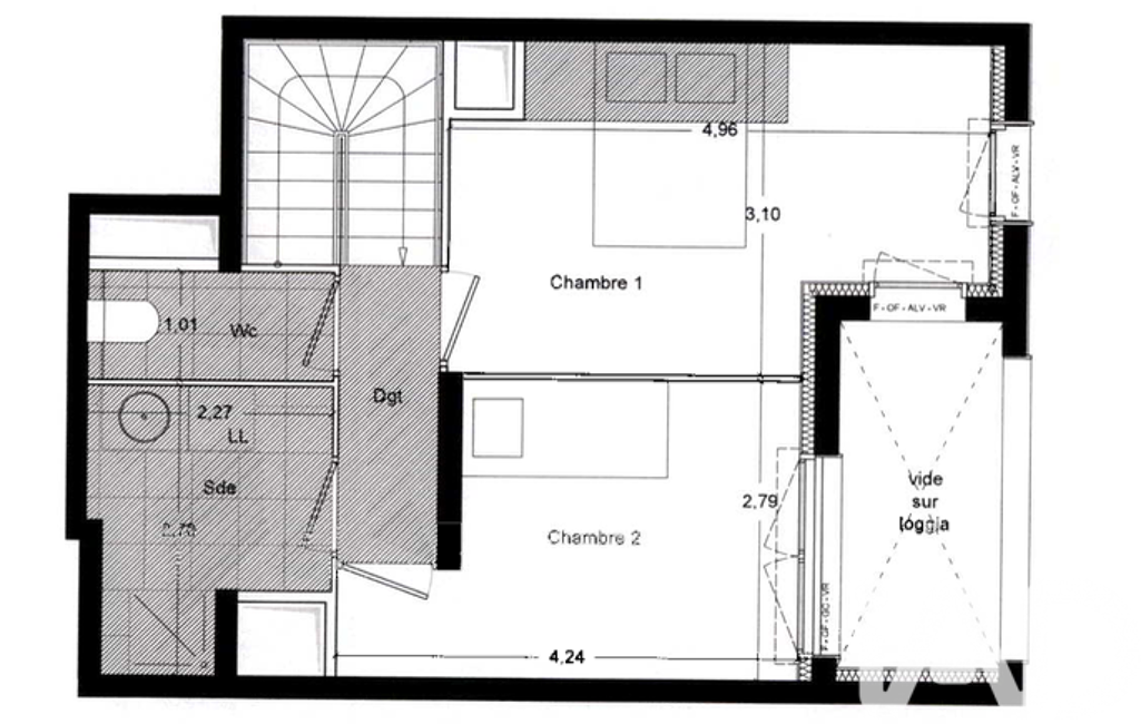
Duplex moderne 3 pièces de 63m² loi carrez — 2 chambres — cellier
Dans une copropriété sécurisée, moderne et très récente, venez découvrir ce charmant 3 pièces en duplex, baigné de lumière grâce à son exposition Est, situé au 2ᵉ et 3ᵉ étage avec ascenseur.
Au niveau principal : une entrée avec placard, un séjour lumineux avec cuisine ouverte, aménagée et équipée, le tout donnant sur une loggia sans vis-à-vis. Une salle d’eau avec WC complète cet espace.
À l’étage : deux chambres confortables, dont une belle chambre de 13 m², une deuxième salle d’eau et des WC séparés.
Cerise sur le gâteau : au dernier étage, profitez d’un superbe toit-terrasse partagé, avec ses coins potagers et son ambiance idéale pour partager un verre entre voisins dans un cadre convivial !
Commodités à portée de main : Monoprix, Picard, boulangerie, mairie, écoles… tout est accessible à pied.
DPE excellent en B – Double vitrage – résidence sécurisée – digicode – interphone – fibre optique – local vélos/poussettes
Un cellier sur le palier complète ce bien.
A visiter sans tarder !
La presente annonce immobiliere vise 2 lots situés dans une copropriété de 52 lots au total et ne faisant l'objet d'aucune procédure en cours citée à l'article L. 721-1 du code de la construction et de l'habitation. Montant moyen mensuel de charges déclaré par le vendeur : 198.38€ par mois (soit 2380.56 € annuel). Honoraires d'agence à la charge du vendeur.
Information d'affichage énergétique sur ce bien : classe ENERGIE B indice 64 et classe CLIMAT B indice 8. Les informations sur les risques auxquels ce bien est exposé, y compris l'obligation légale de débroussaillement, sont disponibles sur le site Géorisques : http://www.georisques.gouv.fr.
La présente annonce immobilière a été rédigée sous la responsabilité éditoriale de M Thierry Pichard mandataire indépendant en immobilier (sans détention de fonds), agent commercial de la SAS I@D France immatriculé au RSAC de BOBIGNY sous le numéro 905032827, titulaire de la carte de démarchage immobilier pour le compte de la société I@D France SAS.
Mandat : 1975037
Diagnostic de Performance Énergétique (DPE)
Plus d'informations
-
Descriptif
- Étage du bien : 2eme
- Ascenseur
- Nbre. d'étages : 9
- Nbre. de chambres : 2
- Nb. de pièces : 3
-
Equipement
- Alarme
- Câble TV
- Digicode
- Chauffage : collectif gaz radiateur
- Interphone
-
Loi ALUR
- Copropriété
- Nombre de lots de la copropriété : 52
- Moyenne de la quote part(an) : 2 380.56 €
-
Etat
- Année de construction : 2022
-
Conditions
- Honoraires à charge de : vendeur
-
Superficies
- Surface habitable : 63 m²
Localisation
Contactez nous
Pour plus d'informations sur cette annonce, n'hésitez pas à nous contacter