Vente
Appartement
à
Vannes
357 000 €
Vannes (56000)
iad France - Laurence Develey (06 75 80 49 40) vous propose : VIVRE ENTRE TERRE ET MER
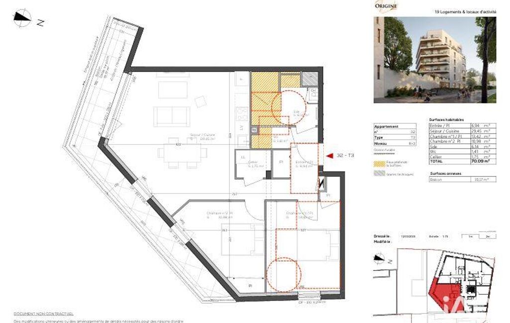
Vous rêvez du calme du Golfe sans sacrifier le dynamisme de la ville ? Ne cherchez plus ! Découvrez ce superbe T3 au cOEur d'une résidence de seulement 19 appartements.
UN EMPLACEMENT DE PREMIER CHOIX
Le meilleur des deux mondes à portée de main :
4 km seulement de l'emblématique Presqu'île de Conleau et du Port de Vannes.
700 m des bus pour rejoindre le centre-ville en un clin d'OEil.
Respirez l’air marin tout en restant parfaitement connecté !
UN COCON MODERNE & OPTIMISÉ
Pensé pour votre confort, cet appartement offre un agencement sans fausse note :
Pièce de vie lumineuse avec cuisine ouverte pour plus de convivialité.
2 belles chambres spacieuses et baignées de lumière.
Salle d’eau moderne & WC séparés.
Balcon privatif : le spot idéal pour vos cafés au soleil ou vos soirées d’été.
PERFORMANCE & SÉRÉNITÉ (RE 2020)
Préparez l’avenir sereinement avec une livraison prévue pour fin 2026
Standard RE 2020 : Isolation premium et factures d'énergie réduites.
Avantages du Neuf : Frais de notaire réduits et garanties constructeur incluses.
Le coup de cOEur est garanti ! Soyez parmi les rares privilégiés à intégrer ce petit collectif à taille humaine.
*photos non contractuelles
Honoraires d’agence à la charge du vendeur. Bien non soumis au DPE. Les informations sur les risques auxquels ce bien est exposé sont disponibles sur le site Géorisques : www.georisques.gouv.fr. La présente annonce immobilière a été rédigée sous la responsabilité éditoriale de Mme Laurence Develey EI (ID 93449), mandataire indépendant en immobilier (sans détention de fonds), agent commercial de la SAS I@D France immatriculé au RSAC de LORIENT sous le numéro 100645944, titulaire de la carte de démarchage immobilier pour le compte de la société I@D France SAS.
Retrouvez tous nos biens sur notre site internet. www.iadfrance.fr
Mandat : 1962456-6
Diagnostic de Performance Énergétique (DPE)
Plus d'informations
-
Descriptif
- Étage du bien : 3eme
- Ascenseur
- Nbre. d'étages : 6
- Nbre. de chambres : 2
- Nb. de pièces : 3
-
Equipement
- Digicode
- Chauffage : individuel electrique radiateur
- Interphone
-
Superficies
- Surface du balcon : 15 m²
- Surface habitable : 70 m²
-
Etat
- Année de construction : 2026
-
Conditions
- Honoraires à charge de : vendeur
Localisation
Contactez nous
Pour plus d'informations sur cette annonce, n'hésitez pas à nous contacter