Vente
Appartement
à
Avignon
160 000 €
Avignon (84000)
iad France - Céline Inaudi (06 58 44 63 26) vous propose : Appartement T2 avec terrasse et parking – résidence sécurisée – Avignon.
Situé dans un environnement agréable, cet appartement T2 de 42 m² environ offre un cadre de vie confortable avec terrasse et place de stationnement.
Cette résidence sécurisée bénéficie d’un emplacement pratique, proche des commerces, transports et du centre d’Avignon.
Idéal résidence principale, premier achat ou investissement locatif.
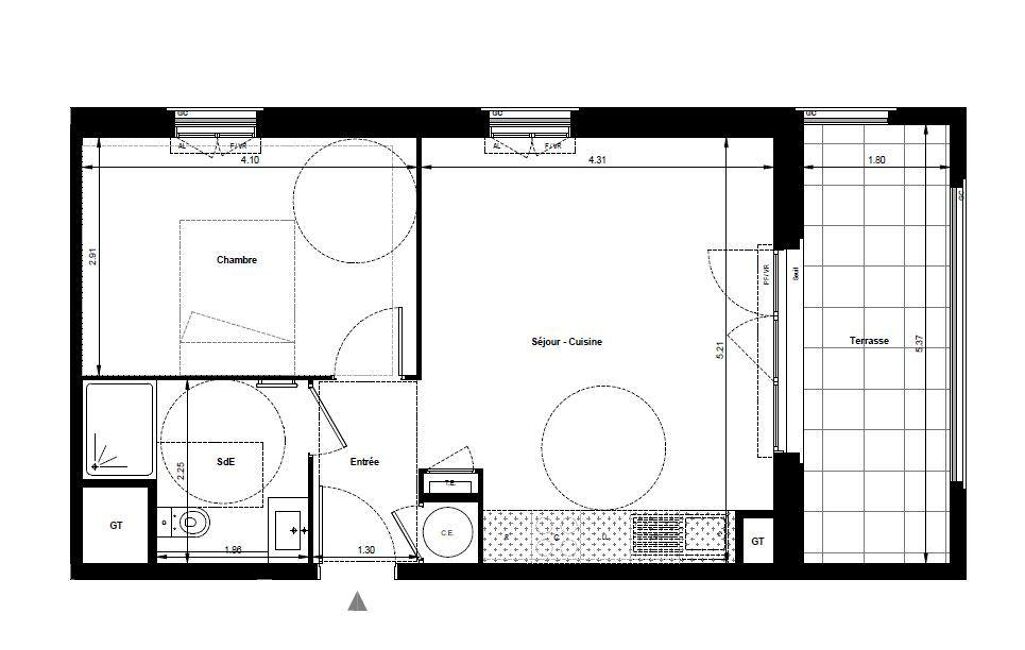
D'une surface de 42,02 m² environ habitables l'appartement se compose d'une entrée, un séjour avec cuisine ouverte de 21,35 m² environ donnant sur la terrasse exposée Est.
Une chambre, une salle d'eau avec WC.
Vous bénéficiez également d'une place de stationnement en extérieur.
Les prestations
Chauffage individuel air / air type climatisation réversible
Eau chaude par ballon thermodynamique
Menuiseries aluminium double vitrage
Volets roulants
Résidence sécurisée avec contrôle d’accès
Espaces paysagers communs
Quartier bien desservi :
Ligne de bus N°902, C2 et E1 (arrêt combe) à 120mètres
Autoroute A7 à 3km
Gare Avignon Centre à 2.9km
Commerces, écoles et collège à proximité
A seulement, 15 minutes à pied des remparts d’Avignon et du centre historique.
Disponibilité prévisionnelle : 2027
Pour recevoir le dossier complet de cet appartement contactez-moi
Honoraires d’agence à la charge du vendeur. Bien non soumis au DPE. Les informations sur les risques auxquels ce bien est exposé sont disponibles sur le site Géorisques : www.georisques.gouv.fr. La présente annonce immobilière a été rédigée sous la responsabilité éditoriale de Mlle Céline Inaudi EI (ID 85801), mandataire indépendant en immobilier (sans détention de fonds), agent commercial de la SAS I@D France immatriculé au RSAC de Avignon sous le numéro 532514403, titulaire de la carte de démarchage immobilier pour le compte de la société I@D France SAS.
Retrouvez tous nos biens sur notre site internet. www.iadfrance.fr
Mandat : 1969078-5
Diagnostic de Performance Énergétique (DPE)
Plus d'informations
-
Descriptif
- Étage du bien : 3eme
- Terrasse
- Ascenseur
- Nbre. d'étages : 4
- Nbre. de chambres : 1
- Nb. Parking : 1
- Nb. de pièces : 2
-
Equipement
- Chauffage : individuel electrique radiateur
- Interphone
-
Superficies
- Surface terrasse : 10 m²
- Surface habitable : 42 m²
-
Etat
- Année de construction : 2026
-
Conditions
- Honoraires à charge de : vendeur
Localisation
Contactez nous
Pour plus d'informations sur cette annonce, n'hésitez pas à nous contacter