Vente
Maison
à
Grez-sur-Loing
400 000 €
Grez-sur-Loing (77880)
iad France - Claire Hontarede (06 61 18 78 59) vous propose : Grez sur Loing, lieu dit de Hulay (au sud de Fontainebleau), sur 3200m² environ de terrain arboré, dont 1600m² environ de jardin clôturé, belle maison de 1850 en pierre de pays.
Cette charmante maison d’environ 160m² environ habitables se compose d’une grande réception avec cheminée et ouverture sur le jardin, cuisine dinatoire aménagée et équipée, toilettes d’invités.
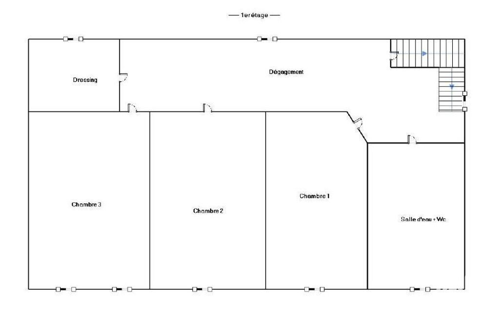
Au 1er étage, le couloir dessert 3 chambres, dressing et une salle de bains avec toilettes.
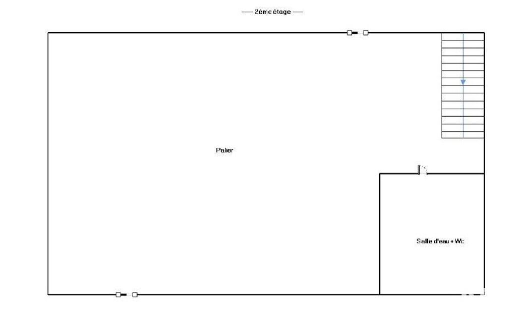
Au 2e étage, les combles sont aménagés en totalité avec un coin salle d’eau et toilettes.
Une buanderie / chaufferie ainsi qu’une cave complètent le tout. Possibilité de garer plusieurs voitures.
Proximité des commerces et écoles (3 mn en voiture), gare à 3 km (train toutes les heures pour Paris Gare de Lyon). Ramassage scolaire pour collège et lycée.
Honoraires d’agence à la charge du vendeur.Information d'affichage énergétique sur ce bien : classe ENERGIE F indice 323 et classe CLIMAT F indice 98. Les informations sur les risques auxquels ce bien est exposé sont disponibles sur le site Géorisques : www.georisques.gouv.fr. La présente annonce immobilière a été rédigée sous la responsabilité éditoriale de Mlle Claire Hontarede EI (ID 41251), mandataire indépendant en immobilier (sans détention de fonds), agent commercial de la SAS I@D France immatriculé au RSAC de Melun sous le numéro 877850958, titulaire de la carte de démarchage immobilier pour le compte de la société I@D France SAS. Le présent bien est commercialisé dans le cadre d'une délégation de mandat.
Retrouvez tous nos biens sur notre site internet. www.iadfrance.fr
Mandat : 1955888
Diagnostic de Performance Énergétique (DPE)
Plus d'informations
-
Descriptif
- Nbre. d'étages : 2
- Nbre. de chambres : 4
- Nb. de pièces : 6
-
Superficies
- Superficie terrain : 3200 m²
- Surface habitable : 164 m²
-
Etat
- Année de construction : 1850
-
Conditions
- Honoraires à charge de : vendeur
Localisation
Contactez nous
Pour plus d'informations sur cette annonce, n'hésitez pas à nous contacter