Vente
Appartement
à
Paris
520 000 €
Paris (75011)
iad France - Ana Mirela Calin vous propose: Appartement plein de charme PARIS 11ème -Rue faubourg du Temple
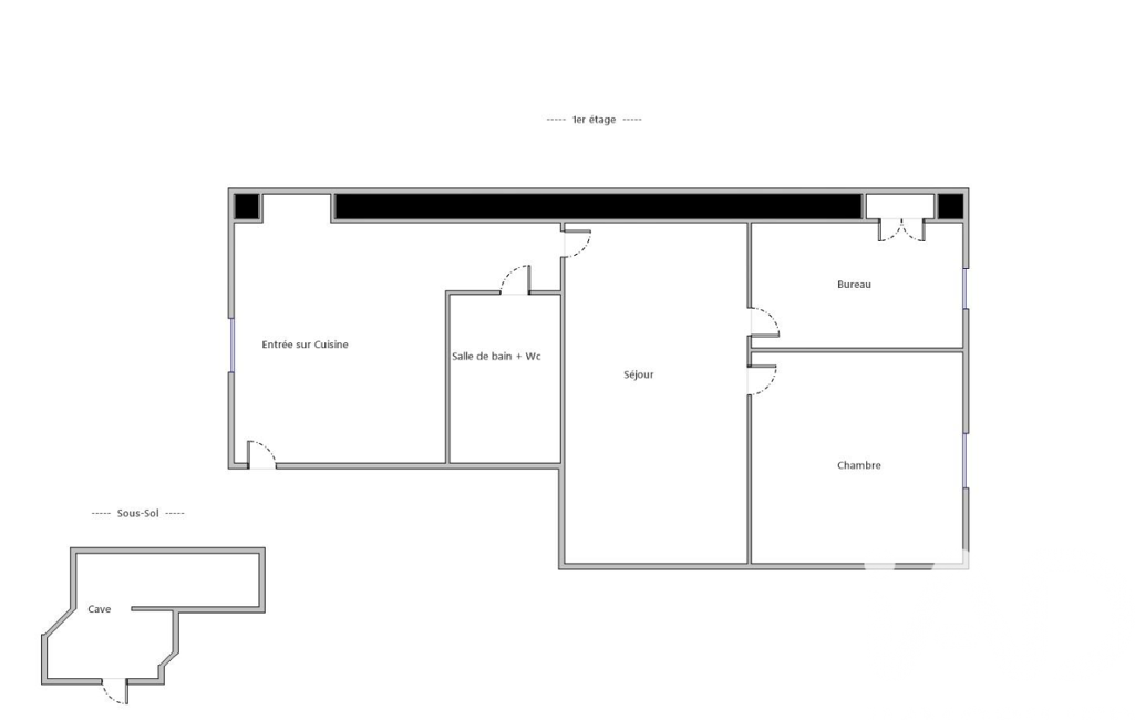
Idéalement situé au pied du métro République, au cOEur d’un quartier vivant et recherché de Paris, cet appartement T2bis de 44 m² au charme authentique vous séduira par son potentiel et son emplacement privilégié.
Situé au 1er étage d’un immeuble en pierre de taille datant de 1930, il offre un agencement fonctionnel comprenant un séjour, une chambre, un bureau, une cuisine indépendante équipée, ainsi qu’une salle de bain et des toilettes.
Un cadre de vie parisien plein de charme dans une résidence calme et sécurisée. Chauffage individuel, fibre optique, une cave complète ce bien. Idéal à proximité immédiate des transports, commerces et commodités.
À seulement quelques pas du Canal Saint Martin, cafés animés et espaces culturels, ce bien rare combine emplacement d’exception et qualité de vie urbaine.
Cet appartement s’adresse à ceux qui recherchent un lieu de vie authentique et vivant, parfait pour un premier achat, un pied-à-terre parisien ou un investissement locatif de choix.
Visite virtuelle disponible sur demande.
La presente annonce immobiliere vise 2 lots situés dans une copropriété de 124 lots au total et ne faisant l'objet d'aucune procédure en cours citée à l'article L. 721-1 du code de la construction et de l'habitation. Montant moyen mensuel de charges déclaré par le vendeur : 195€ par mois (soit 2340 € annuel). Honoraires d'agence à la charge du vendeur.
Information d'affichage énergétique sur ce bien : classe ENERGIE D indice 212 et classe CLIMAT D indice 45. Les informations sur les risques auxquels ce bien est exposé, y compris l'obligation légale de débroussaillement, sont disponibles sur le site Géorisques : http://www.georisques.gouv.fr.
La présente annonce immobilière a été rédigée sous la responsabilité éditoriale de Mme Ana Mirela Calin mandataire indépendant en immobilier (sans détention de fonds), agent commercial de la SAS I@D France immatriculé au RSAC de Toulouse sous le numéro 941043093, titulaire de la carte de démarchage immobilier pour le compte de la société I@D France SAS.
Mandat : 1878607
Diagnostic de Performance Énergétique (DPE)
Plus d'informations
-
Descriptif
- Cave
- Étage du bien : 1er
- Nbre. d'étages : 5
- Nbre. de chambres : 1
- Nb. de pièces : 2
-
Loi ALUR
- Copropriété
- Nombre de lots de la copropriété : 124
- Moyenne de la quote part(an) : 2 340 €
-
Equipement
- Câble TV
- Interphone
-
Etat
- Année de construction : 1930
-
Conditions
- Honoraires à charge de : vendeur
-
Superficies
- Surface habitable : 44 m²
Localisation
Contactez nous
Pour plus d'informations sur cette annonce, n'hésitez pas à nous contacter