Vente
Maison de ville
à
Vincennes
1 900 000 €
Vincennes (94300)
iad France - Valérie Mousselon vous propose: MAISON DE VILLE D’EXCEPTION – 172 m² – 7 PIÈCES – VINCENNES CENTRE ✨
Idéal investisseur ou profession libérale
Située en plein centre de Vincennes, à seulement quelques pas du Château de Vincennes, cette superbe maison de ville de 172 m² habitables offre 7 pièces principales et de multiples possibilités d’exploitation grâce à sa configuration unique en deux ailes.
REZ DE CHAUSSÉE :
Une entrée spacieuse de 9 m² dessert deux espaces distincts :
Aile Ouest (extension indépendante – 42 m²)
Séjour lumineux de 30 m²
Une chambre
Salle d’eau de 12 m²
Idéal pour activité professionnelle ou logement indépendant
Aile Est (maison principale)
Séjour de 28 m²
Cuisine indépendante (9 m²)
Salle de bain (7 m²)
WC séparés
Rangements
1er ÉTAGE
Aile Est :
Palier (5 m²)
3 chambres (14 m², 13 m², 9,5 m²)
Salle de bain
WC indépendant
Aile Ouest :
Fort potentiel : possibilité de surélévation (~40 m² supplémentaires)
2e ÉTAGE
Suite parentale (12 m² Carrez / 34 m² au sol)
Salle d’eau rénovée
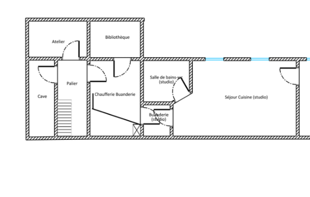
SOUS-SOL
Aile Ouest :
Studio aménagé (pièce de vie + kitchenette + salle d’eau)
Garage
Aile Est :
Sous-sol total, idéal stockage
Les atouts pour investisseurs :
Possibilité de surélévation de l’aile Ouest
Possibilité de division en plusieurs lots
Proche des transports en commun et du centre
Les atouts pour professions libérales :
Espace indépendant parfait pour cabinet / bureau
Séparation claire habitation / activité
Adresse centrale et recherchée
Environnement :
Maison bénéficiant d’un emplacement central et recherché.
Transports :
Métro Bérault (ligne 1 du métro de Paris) à environ 3 min à pied et Vincennes (RER A) à 6 min à pied, permettant de rejoindre rapidement Paris et La Défense.
Commodités :
Centre-ville, commerces, écoles et restaurants accessibles en moins de 5 min à pied.
Cadre de vie :
Château de Vincennes à 3 min à pied et Bois de Vincennes à 8 min à pied.
Honoraires d'agence à la charge du vendeur.
Information d'affichage énergétique sur ce bien : classe ENERGIE F indice 415 et classe CLIMAT E indice 64. Les informations sur les risques auxquels ce bien est exposé, y compris l'obligation légale de débroussaillement, sont disponibles sur le site Géorisques : http://www.georisques.gouv.fr.
La présente annonce immobilière a été rédigée sous la responsabilité éditoriale de Mme Valérie Mousselon mandataire indépendant en immobilier (sans détention de fonds), agent commercial de la SAS I@D France immatriculé au RSAC de PARIS sous le numéro 993877562, titulaire de la carte de démarchage immobilier pour le compte de la société I@D France SAS.
Mandat : 2001117
Diagnostic de Performance Énergétique (DPE)
Plus d'informations
-
Descriptif
- Cave
- Nbre. d'étages : 2
- Nbre. de chambres : 5
- Nb. de pièces : 7
-
Equipement
- Chauffage : gaz radiateur
- Interphone
-
Superficies
- Superficie terrain : 180 m²
- Surface habitable : 172 m²
-
Conditions
- Honoraires à charge de : vendeur
Localisation
Contactez nous
Pour plus d'informations sur cette annonce, n'hésitez pas à nous contacter