Vente
Maison
à
Janville
198 000 €
Janville (28310)
iad France - Jimmy Benoit vous propose: A 10 minutes de JANVILLE, située à GERMIGNONVILLE,
Authentique maison de campagne avec 5 chambres et jardin arboré – terrain clos de 900 m²
Découvrez cette maison pleine de charme offrant de beaux volumes et un cadre de vie paisible.
Dès l’entrée, vous profitez d’une cuisine dinatoire avec cheminée, idéale pour les repas conviviaux, donnant accès à une salle à manger et un salon lumineux avec double ouverture sur la cour avant et le jardin arrière. Une chambre de plain-pied avec accès direct au jardin complète ce niveau, ainsi qu’une salle d’eau avec WC.
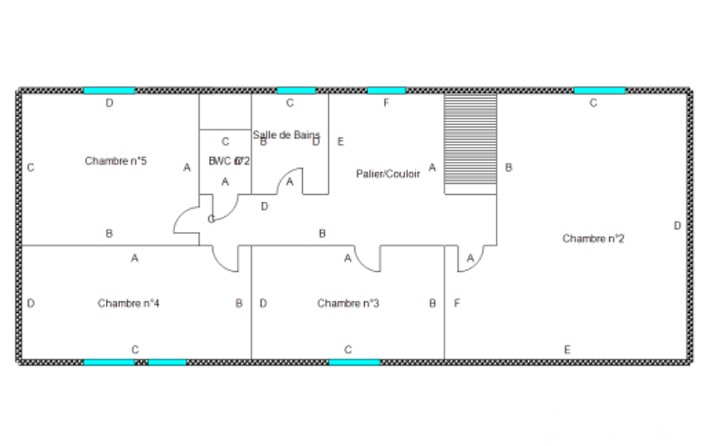
À l’étage, un palier de 7 m² dessert quatre chambres spacieuses, dont une de plus de 25 m², parfait pour une salle de loisirs. Vous trouverez également une salle de bains et un WC indépendant.
À l’extérieur, le terrain clos et arboré de 900 m² sans vis-à-vis offre un véritable havre de paix.
Un garage avec grenier complète l’ensemble.
Une maison idéale pour une famille à la recherche d’espace, de confort et d’authenticité à la campagne.
Honoraires d'agence à la charge du vendeur.
Information d'affichage énergétique sur ce bien : classe ENERGIE E indice 320 et classe CLIMAT B indice 10. Les informations sur les risques auxquels ce bien est exposé, y compris l'obligation légale de débroussaillement, sont disponibles sur le site Géorisques : http://www.georisques.gouv.fr.
La présente annonce immobilière a été rédigée sous la responsabilité éditoriale de M Jimmy Benoit mandataire indépendant en immobilier (sans détention de fonds), agent commercial de la SAS I@D France immatriculé au RSAC de CHARTRES sous le numéro 838167047, titulaire de la carte de démarchage immobilier pour le compte de la société I@D France SAS.
Mandat : 1823712
Diagnostic de Performance Énergétique (DPE)
Plus d'informations
-
Descriptif
- Nbre. d'étages : 2
- Nbre. de chambres : 5
- Nb. de pièces : 8
-
Equipement
- Cheminée
- Chauffage : electrique radiateur
-
Superficies
- Superficie terrain : 900 m²
- Surface habitable : 170 m²
-
Etat
- Année de construction : 1900
-
Conditions
- Honoraires à charge de : vendeur
Localisation
Contactez nous
Pour plus d'informations sur cette annonce, n'hésitez pas à nous contacter