Vente
Appartement
à
Meylan
309 000 €
Meylan (38240)
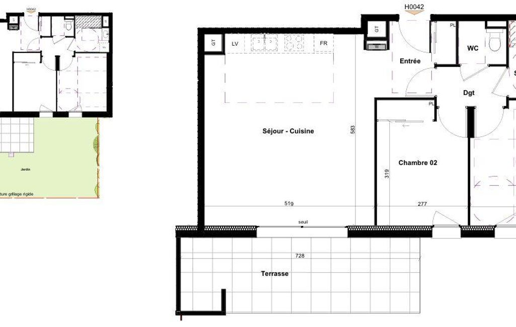
iad France - Mélanie Rallo (07 52 08 10 21) vous propose : Appartement T3 avec terrasse et jardin – Meylan
Situé sur la commune prisée de Meylan, au sein d’une résidence de standing à l’architecture contemporaine, découvrez ce bel appartement 3 pièces en rez-de-jardin, dont la livraison est prévue fin 2026.
D’une conception moderne et fonctionnelle, ce bien se compose :
- d’un séjour-cuisine lumineux ouvrant sur une agréable terrasse exposée Sud-Est,
- d’un jardin privatif, idéal pour profiter des beaux jours,
- de deux chambres dont l'une est équipée d'un placard,
- d’une salle d'eau avec douche,
- d'un WC indépendant.
Les atouts du bien :
- Résidence conforme à la réglementation RT 2012, garantissant confort thermique et performance énergétique
- Chauffage urbain individuel
- Résidence sécurisée avec prestations de qualité
- Local vélo commun (commun ou possibilité privative)
Des places de stationnement privatives en sous-sol peuvent également être proposées en option, en supplément du prix de vente.
Emplacement privilégié :
À proximité immédiate des commodités (commerces, transports, écoles), tout en bénéficiant d’un environnement résidentiel recherché aux portes de Grenoble.
Contactez moi pour plus d'informations.
Honoraires d’agence à la charge du vendeur. Bien non soumis au DPE. Les informations sur les risques auxquels ce bien est exposé sont disponibles sur le site Géorisques : www.georisques.gouv.fr. La présente annonce immobilière a été rédigée sous la responsabilité éditoriale de Mlle Mélanie Rallo EI (ID 89566), mandataire indépendant en immobilier (sans détention de fonds), agent commercial de la SAS I@D France immatriculé au RSAC de GRENOBLE sous le numéro 990932709, titulaire de la carte de démarchage immobilier pour le compte de la société I@D France SAS.
Retrouvez tous nos biens sur notre site internet. www.iadfrance.fr
Mandat : 1966872-2
Diagnostic de Performance Énergétique (DPE)
Plus d'informations
-
Descriptif
- Terrasse
- Ascenseur
- Nbre. d'étages : 3
- Nbre. de chambres : 2
- Nb. de pièces : 3
-
Equipement
- Câble TV
- Digicode
- Placards
- Interphone
-
Superficies
- Surface terrasse : 16 m²
- Surface habitable : 66 m²
-
Conditions
- Honoraires à charge de : vendeur
Localisation
Contactez nous
Pour plus d'informations sur cette annonce, n'hésitez pas à nous contacter