Vente
Maison
à
Saint-Zacharie
780 000 €
Saint-Zacharie (83640)
iad France - Grégory Gauthret vous propose: SAINT ZACHARIE - Magnifique villa double habitation, offrant un cadre de vie exceptionnel.
Cette superbe maison de 230m2 sur une parcelle de 6000m2 vous séduira par ses volumes et sa superbe piscine 10x5.
Profitez d'un cadre de vie exceptionnel dans un secteur les plus prisés de Saint Zacharie.
Commençons la visite par la première habitation de 133m2 qui se compose d'une entrée, d'un séjour de 34m2 avec cheminée, climatisation et un accès sur le jardin et la piscine, une cuisine séparée de 16m2, un cellier, une salle de bain avec douche italienne, un WC indépendant, une chambre avec dressing de 20m2, une buanderie de 7m2.
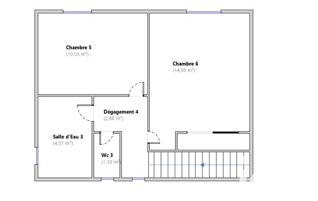
A l'étage se trouve un dégagement, une chambre avec placard de 15m2, une chambre de 10m2, une salle d'eau avec douche, un WC indépendant.
Continuons la visite avec la deuxième habitation de 96m2 de plain pied qui se compose d'un séjour/cuisine de 46m2 avec poêle à granules et climatisation qui bénéficie d'un accès direct sur le jardin, une salle d'eau avec douche, un WC indépendant.
Coté nuit se trouvent 3 chambres dont une suite parentale de 23m2 avec vue sur le jardin.
Coté extérieur se trouve un magnifique jardin paysagé et arboré d'arbres fruitiers agrémenté d'un petit cours d'eau, une superbe piscine 10x5 avec son pool house de 20m2, un atelier de 16m2
Pour votre confort maison avec climatisation, cheminée, chauffage au gaz, poêles à granules, volets roulants électriques, portail électrique, alarme, adoucisseur, vide sanitaire, stationnements plusieurs véhicules etc...
Taxe foncière: 4300€
N'hésitez pas à me contacter pour organiser une visite et découvrir tous les détails de cette superbe propriété.
Honoraires d'agence à la charge du vendeur.
Information d'affichage énergétique sur ce bien : classe ENERGIE C indice 103 et classe CLIMAT C indice 12. Les informations sur les risques auxquels ce bien est exposé, y compris l'obligation légale de débroussaillement, sont disponibles sur le site Géorisques : http://www.georisques.gouv.fr.
La présente annonce immobilière a été rédigée sous la responsabilité éditoriale de M Grégory Gauthret mandataire indépendant en immobilier (sans détention de fonds), agent commercial de la SAS I@D France immatriculé au RSAC de DRAGUIGNAN sous le numéro 535137715, titulaire de la carte de démarchage immobilier pour le compte de la société I@D France SAS.
Mandat : 1970130
Diagnostic de Performance Énergétique (DPE)
Plus d'informations
-
Equipement
- Alarme
- Cheminée
- Chauffage : gaz
- Interphone
- Climatisation
-
Superficies
- Superficie terrain : 6050 m²
- Surface habitable : 230 m²
-
Etat
- Année de construction : 1995
-
Conditions
- Honoraires à charge de : vendeur
-
Descriptif
- Nb. de pièces : 8
Localisation
Contactez nous
Pour plus d'informations sur cette annonce, n'hésitez pas à nous contacter