Vente
Local commercial
à
Cernay-la-Ville
1 800 000 €
Cernay-la-Ville (78720)
iad France - Christophe Mutrelle (06 72 91 64 21) vous propose : Murs et fonds de commerce à vendre d’un magnifique Hôtel restaurant de 950m² environ sur 10620m² environ de parcelle située en plein cOEur de la Vallée de Chevreuse !
Vous avez toujours rêvé de pouvoir exercer vos talents dans un établissement qui serait enfin en adéquation avec vous. Ne cherchez plus vous l’avez trouvé ! Niché au cOEur de la Vallée de Chevreuse, entouré de sa forêt, à proximité immédiate d’un superbe étang tout en bénéficiant d’un passage important de part sa situation, cet établissement de renom à tout pour vous séduire.
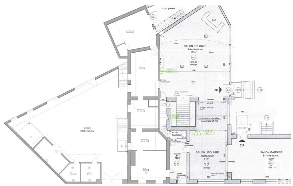
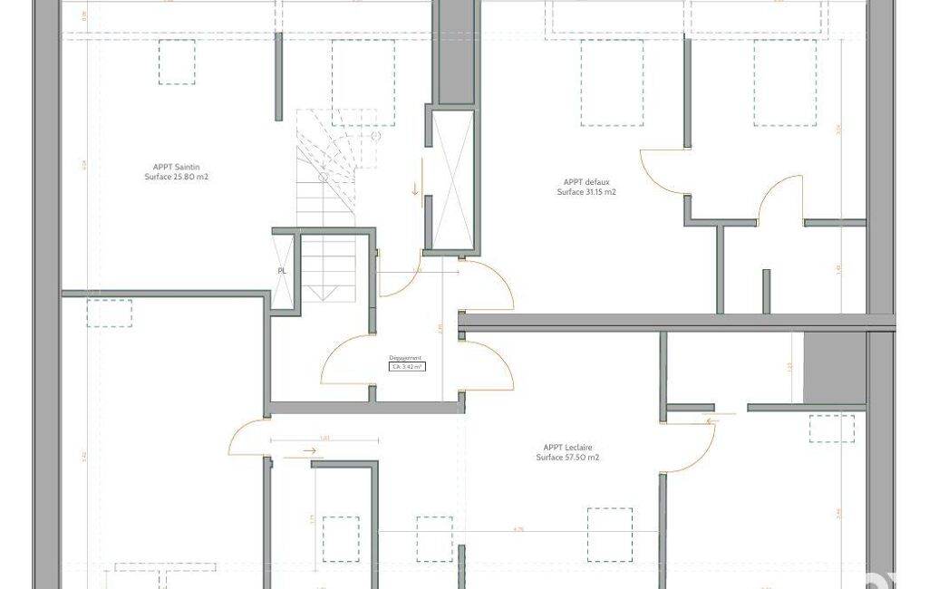
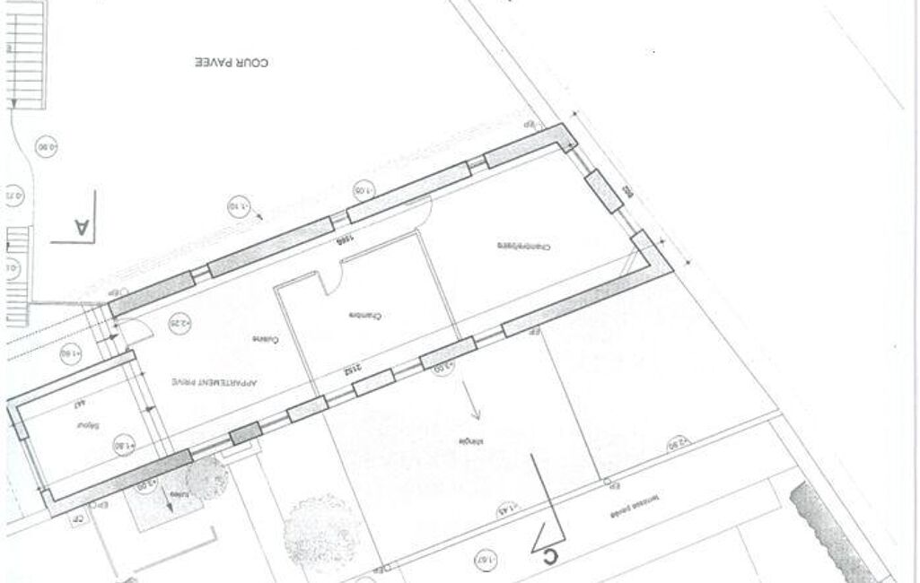
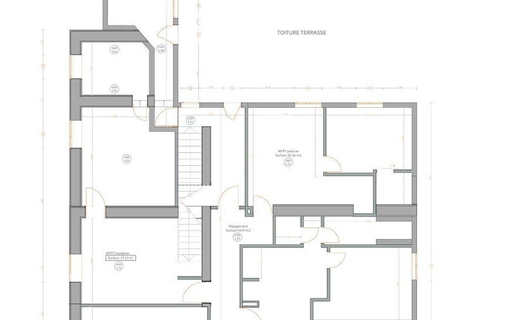
Un grand parking permettra à vos clients d’avoir accès facilement à votre établissement en traversant un très beau parc arboré où vous pourrez y organiser des réceptions de toutes sortes. La salle de restaurant n’est pas en reste puisqu’elle vous offre 216m² environ pour y accueillir vos clients. Pour leur préparer la gastronomie de votre choix vous bénéficiez d’une grande cuisine de 80m² environ toute équipée avec bien évidement des zones de stockage pour le frais et le sec. Au sous-sol vous pourrez faire danser vos convives dans la discothèque et stocker tous les breuvages qui les raviront. Enfin pour terminer de prendre soin de vos clients vous pourrez leur proposer l’un des 7 appartements dont dispose l’établissement. Et pour finir vous pourrez jouir d’une superbe maison de fonction de 150m² environ et de sa piscine privé, accolée à l’hôtel, pour accueillir votre famille ou agrandir la partie hostellerie.
Vous l’avez compris il s’agit d’une petite pépite qui ne demande qu’à trouver la bonne personne pour exprimer tout son potentielle. Appelez-moi vite pour en profiter !
Information d'affichage énergétique sur le bien associé à cette annonce : DPE NS indice 0 et GES NS indice 0. La présente annonce immobilière a été rédigée sous la responsabilité éditoriale de M. Christophe Mutrelle (ID 32386), Agent Commercial mandataire en immobilier immatriculé au Registre Spécial des Agents Commerciaux (RSAC) du Tribunal de Commerce de Versailles sous le numéro 842246811
Retrouvez tous nos biens sur notre site internet. www.iadfrance.fr
Mandat : 1784170
Diagnostic de Performance Énergétique (DPE)
Plus d'informations
-
Conditions
- Honoraires à charge de : vendeur
-
Superficies
- Surface habitable : 950 m²
Localisation
Contactez nous
Pour plus d'informations sur cette annonce, n'hésitez pas à nous contacter