Vente
Maison
à
Seillans
580 000 €
Seillans (83440)
iad France - Daniel Costa vous propose: Maison de caractère 169 m² - Terrain 3255 m² avec piscine - Proche commodités
Située au calme absolu en impasse, à quelques minutes à pied du centre du village, des écoles et de la supérette, découvrez cette propriété de 3255 m² offrant un cadre de vie privilégié, bordé par un ruisseau et agrémenté d’oliviers centenaires.
La Maison :
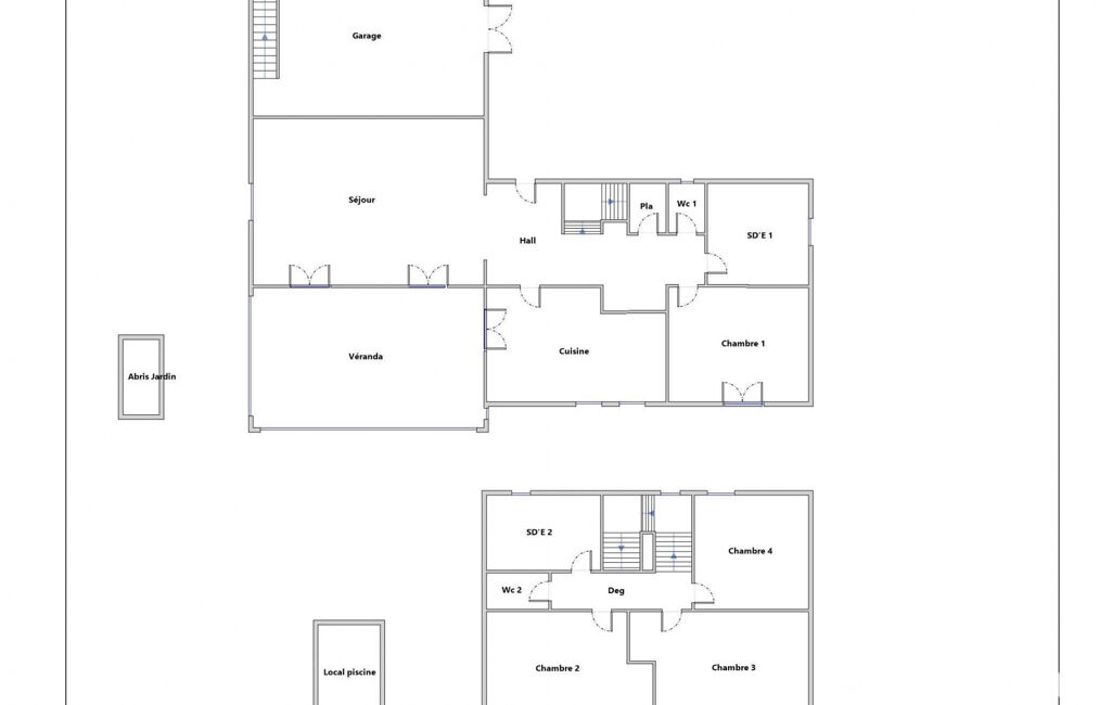
Cette demeure des années 80, d'une surface totale de 169 m² (incluant une véranda de 28 m²), est en bon état et a été très bien entretenue. Elle propose des prestations de qualité : climatisation, double vitrage, moustiquaires et cheminée à insert.
Agencement intérieur :
Rez-de-chaussée : Une entrée desservant une pièce de vie lumineuse, une cuisine indépendante et un séjour ouvrant tous deux sur la vaste véranda, véritable espace de vie supplémentaire orienté vers la terrasse. Ce niveau dispose également d'une suite de plain-pied avec chambre, salle d'eau contemporaine rénovée et WC indépendant.
Étage : Un palier climatisé distribue trois chambres confortables, une salle d'eau et un WC indépendant.
Extérieurs et Dépendances :
Le jardin, véritable havre de paix, dispose d'une piscine chauffée (gaz) de 12x4 m, d'un espace barbecue, ainsi que d'une douche et d'un WC extérieurs.
Équipements techniques :
Garage avec grande mezzanine de stockage.
Cave en sous-sol.
Stationnement pour plusieurs véhicules.
Alarme et portail électrique.
Une perle rare alliant charme provençal et confort moderne, prête à accueillir vos plus beaux souvenirs de famille.
Honoraires d'agence à la charge du vendeur.
Information d'affichage énergétique sur ce bien : classe ENERGIE D indice 244 et classe CLIMAT B indice 8. Les informations sur les risques auxquels ce bien est exposé, y compris l'obligation légale de débroussaillement, sont disponibles sur le site Géorisques : http://www.georisques.gouv.fr.
La présente annonce immobilière a été rédigée sous la responsabilité éditoriale de M Daniel Costa mandataire indépendant en immobilier (sans détention de fonds), agent commercial de la SAS I@D France immatriculé au RSAC de Fréjus sous le numéro 842754772, titulaire de la carte de démarchage immobilier pour le compte de la société I@D France SAS.
Mandat : 2006525
Diagnostic de Performance Énergétique (DPE)
Plus d'informations
-
Descriptif
- Cave
- Terrasse
- Nbre. d'étages : 2
- Nbre. de chambres : 4
- Nb. Parking : 1
- Nb. de pièces : 5
-
Equipement
- Alarme
- Cheminée
- Placards
- Chauffage : electrique radiateur
- Climatisation
-
Superficies
- Superficie terrain : 3255 m²
- Surface habitable : 169 m²
-
Extérieur
- Piscine
-
Etat
- Année de construction : 1981
-
Conditions
- Honoraires à charge de : vendeur
Localisation
Contactez nous
Pour plus d'informations sur cette annonce, n'hésitez pas à nous contacter