Vente
Appartement
à
Saint-Denis
199 000 €
Saint-Denis (93380)
iad France - David Nijaki vous propose: Exclusivité – Beau 3 pièces récent avec deux balcons, au calme. Vendu loué.
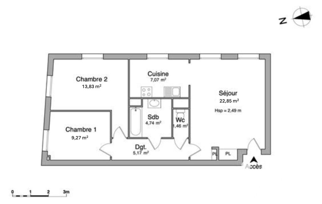
Dans l'ancien centre-ville de Pierrefitte-sur-Seine (désormais rattaché à la commune de Saint-Denis), découvrez ce bel appartement de 3 pièces situé au 2ᵉ étage d’une résidence de 3 étages construite en 2014.
Dès l’entrée, le séjour séduit par sa superficie et sa lumière, avec près de 30 m² incluant une cuisine semi-ouverte. Le premier balcon prolonge agréablement cette pièce de vie.
L’appartement compte deux chambres confortables, dont une grande chambre de 14 m² avec son propre balcon. Une salle de bain avec baignoire et un WC indépendant complètent l’ensemble.
Les deux balcons, orientés Est et situés côté cour, offrent une vue dégagée et un cadre paisible. Le bien est en très bon état, aucun travaux à prévoir.
La résidence, fermée et sécurisée, dispose d’un ascenseur, d’un digicode et d’un vidéophone. Chauffage et eau chaude individuels au gaz.
À proximité immédiate des commerces et des transports (RER D et tramway T5), cet appartement constitue un bon investissement locatif : aucune vacance locative depuis la livraison, et une rentabilité supérieure à 5%.
Actuellement loué en location meublée , fin du bail 30 mars 2027.
Un box fermé en sous-sol est disponible en supplément.
La presente annonce immobiliere vise 1 lot situé dans une copropriété de 126 lots au total et ne faisant l'objet d'aucune procédure en cours citée à l'article L. 721-1 du code de la construction et de l'habitation. Montant moyen mensuel de charges déclaré par le vendeur : 136.67€ par mois (soit 1640 € annuel). Honoraires d'agence à la charge du vendeur.
Information d'affichage énergétique sur ce bien : classe ENERGIE C indice 95 et classe CLIMAT C indice 18. Les informations sur les risques auxquels ce bien est exposé, y compris l'obligation légale de débroussaillement, sont disponibles sur le site Géorisques : http://www.georisques.gouv.fr.
La présente annonce immobilière a été rédigée sous la responsabilité éditoriale de M David Nijaki mandataire indépendant en immobilier (sans détention de fonds), agent commercial de la SAS I@D France immatriculé au RSAC de PARIS sous le numéro 928867274, titulaire de la carte de démarchage immobilier pour le compte de la société I@D France SAS.
Mandat : 1987846
Diagnostic de Performance Énergétique (DPE)
Plus d'informations
-
Descriptif
- Ascenseur
- Nbre. d'étages : 3
- Nbre. de chambres : 2
- Nb. de pièces : 3
-
Equipement
- Digicode
- Chauffage : individuel gaz radiateur
- Interphone
-
Loi ALUR
- Copropriété
- Nombre de lots de la copropriété : 126
- Moyenne de la quote part(an) : 1 640 €
-
Superficies
- Surface du balcon : 7 m²
- Surface habitable : 64 m²
-
Etat
- Année de construction : 2014
-
Conditions
- Honoraires à charge de : vendeur
Localisation
Contactez nous
Pour plus d'informations sur cette annonce, n'hésitez pas à nous contacter