Vente
Maison
à
Menthon-Saint-Bernard
595 000 €
Menthon-Saint-Bernard (74290)
iad France - Aubin Finet vous propose: Qui n’a jamais rêvé de vivre dans sa propre maison au coeur de Menthon-Saint-Bernard, l’un des villages les plus prisés de la rive est du lac d’Annecy ?
À seulement 700 mètres des rives du lac et à deux pas des commerces, cette maison de ville à fort potentiel offre un cadre de vie idyllique. Un garage privé, deux entrées indépendantes et la possibilité de créer un studio séparé viennent parfaire les atouts de ce bien rare.
Cette charmante bâtisse en pierre, à rénover, séduira les amateurs d’authenticité et de cachet. Traversante, elle développe plus de 145 m² habitables répartis sur trois niveaux, laissant libre cours à vos envies d’aménagement.
La maison se compose comme suit:
Au rez-de-chaussée : Une première entrée mène à une grande pièce de plus de 23 m², idéale pour aménager un studio indépendant ou une salle à manger conviviale. Vous y trouverez également un garage facilement accessible depuis la rue et une chaufferie. La seconde entrée, de l’autre côté de la maison, dessert un grand dégagement et l’escalier principal.
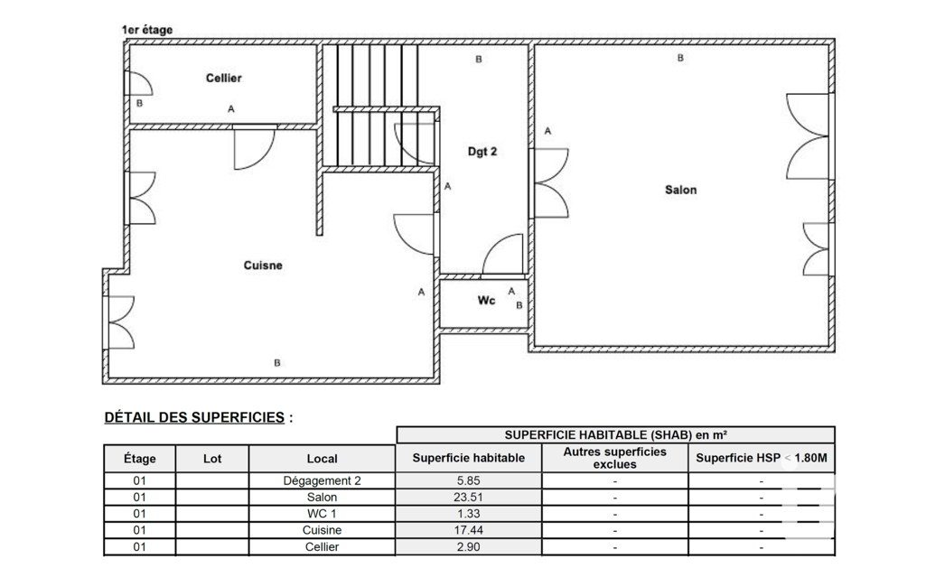
Au 1er étage : Vous pourrez profiter d’une vaste cuisine avec cellier, d’un salon lumineux de plus de 23 m² et des toilettes séparées apportant un confort au quotidien.
Au 2e étage : Deux grandes chambres, dont une suite parentale avec salle d’eau et accès à une mezzanine aménageable selon vos besoins (bureau, espace lecture, chambre d’appoint…). Un second WC indépendant et une salle de bains complètent ce niveau.
Située dans un environnement calme et recherché, à proximité immédiate des commodités et des transports, cette maison représente une opportunité rare de vivre ou d’investir dans l’un des joyaux du bassin annécien.
Une maison pleine de charme, à réinventer selon vos envies.
Contactez-moi dès aujourd’hui pour planifier une visite et donner vie à votre projet immobilier !
Honoraires d'agence à la charge de l'acquéreur. Prix honoraires inclus : 595000 euros. Prix hors honoraires : 571200 euros. Honoraires TTC à la charge de l'acquéreur (4,17% du prix du bien hors honoraires) : 23800 euros.
Information d'affichage énergétique sur ce bien : classe ENERGIE E indice 238 et classe CLIMAT E indice 63. Les informations sur les risques auxquels ce bien est exposé, y compris l'obligation légale de débroussaillement, sont disponibles sur le site Géorisques : http://www.georisques.gouv.fr.
La présente annonce immobilière a été rédigée sous la responsabilité éditoriale de M Aubin Finet mandataire indépendant en immobilier (sans détention de fonds), agent commercial de la SAS I@D France immatriculé au RSAC de Tourcoing sous le numéro 930689708, titulaire de la carte de démarchage immobilier pour le compte de la société I@D France SAS.
Mandat : 1801049
Diagnostic de Performance Énergétique (DPE)
Plus d'informations
-
Conditions
- Honoraires : 23 800 €
- Prix hors honoraires acquéreur : 571 200 €
- Honoraires à charge de : acquéreur
-
Descriptif
- Nbre. d'étages : 3
- Nbre. de chambres : 3
- Nb. de pièces : 6
-
Equipement
- Chauffage : fuel radiateur
-
Superficies
- Surface habitable : 145 m²
Localisation
Contactez nous
Pour plus d'informations sur cette annonce, n'hésitez pas à nous contacter