Vente
Maison
à
Allaire
185 000 €
Allaire (56350)
iad France - Laurent Perdrel vous propose: Dans un hameau situé à 5km du centre-ville d'Allaire, maison construite en pierres d'une surface habitable de 139 m² sur un terrain de 740m² + 550m² supplémentaires non-attenants (soit 1 290 m² au total).
Bâtisse construite en 1864, rénovée en 2015 et en bon état général.
Mitoyenneté d'un côté. Exposition Sud.
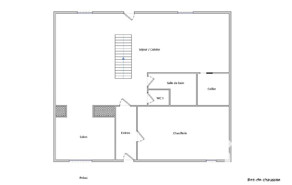
Cette maison sur 2 niveaux comprend au rdc : une entrée, un
salon (11,5m²), un vaste séjour-cuisine aménagée et équipée (46m²), une salle de bain, wc, un cellier, une chaufferie (19,5m²).
A l'étage : un palier distribuant 4 chambres (17, 13, 10, 8m²), une salle d'eau et wc.
Elle dispose également de dépendances et d'une terrasse bois.
Chauffage au bois (poêle : 2015) et au fioul (chaudière : 2002)
Ouvertures PVC double vitrage (2008)
Assainissement individuel non conforme
Terrain partiellement clos
Fibre installée
VMC
Honoraires d'agence à la charge de l'acquéreur. Prix honoraires inclus : 185000 euros. Prix hors honoraires : 175000 euros. Honoraires TTC à la charge de l'acquéreur (5,71% du prix du bien hors honoraires) : 10000 euros.
Information d'affichage énergétique sur ce bien : classe ENERGIE E indice 274 et classe CLIMAT E indice 65. Les informations sur les risques auxquels ce bien est exposé, y compris l'obligation légale de débroussaillement, sont disponibles sur le site Géorisques : http://www.georisques.gouv.fr.
La présente annonce immobilière a été rédigée sous la responsabilité éditoriale de M Laurent Perdrel mandataire indépendant en immobilier (sans détention de fonds), agent commercial de la SAS I@D France immatriculé au RSAC de VANNES sous le numéro 901616151, titulaire de la carte de démarchage immobilier pour le compte de la société I@D France SAS.
Mandat : 1984361
Diagnostic de Performance Énergétique (DPE)
Plus d'informations
-
Conditions
- Honoraires : 10 000 €
- Prix hors honoraires acquéreur : 175 000 €
- Honoraires à charge de : acquéreur
-
Descriptif
- Nbre. d'étages : 2
- Nbre. de chambres : 4
- Nb. de pièces : 5
-
Equipement
- Cheminée
- Chauffage : fuel radiateur
-
Superficies
- Superficie terrain : 1290 m²
- Surface habitable : 139 m²
-
Etat
- Année de construction : 1864
Localisation
Contactez nous
Pour plus d'informations sur cette annonce, n'hésitez pas à nous contacter