Vente
Maison
à
Questembert
392 000 €
Questembert (56230)
iad France - Stéphanie Hamelin vous propose: **Magnifique Maison de 144m² sur un Vaste Terrain de 5685m² à Questembert**
Cette superbe maison individuelle, construite en 1973, offre un cadre de vie unique dans la charmante commune de Questembert. Située sur un terrain spacieux de 5685m², cette propriété vous offre une tranquillité et une intimité absolue, tout en étant proche des commodités de la ville.
**Description de la Maison**
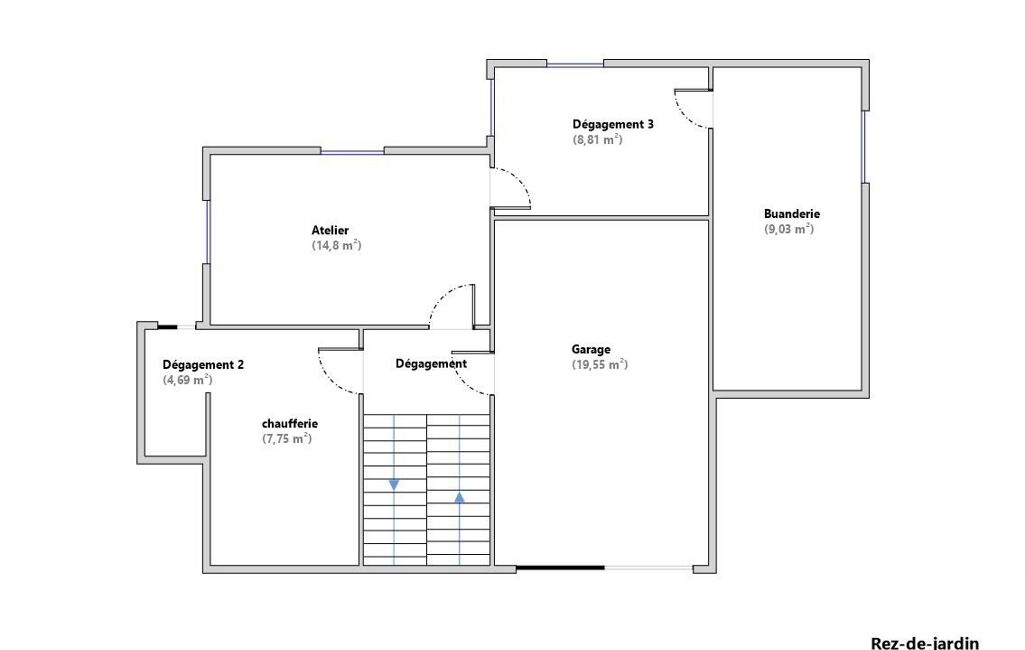
Cette maison de 144m² répartis sur 3 étages saura vous séduire par son agencement et ses possibilités d'aménagement. Les 3 étages offrent de vastes espaces de vie lumineux et aérés, avec des expositions sud, est et ouest qui permettent une luminosité naturelle tout au long de la journée. Vous avez la possibilité de personnaliser chaque niveau selon vos besoins et vos envies.
**Aménagements et Confort**
La maison dispose de tout le confort moderne avec un système de chauffage individuel (radiateurs, chauffage mural et Poêle à bois qualité Italienne), une connexion fibre optique, un raccordement au câble TV et au téléphone, ainsi qu'une fosse toutes eaux aux normes et des espaces de stockage pratiques ( sous sol total).
L'état général de la maison est bon, offrant ainsi un cadre de vie agréable dès votre arrivée.
**Extérieurs et Environnement**
Trois garages sont à votre disposition, non attenants à la maison.
Possibilité de créer un vaste atelier.
Le vaste terrain de 5685m² offre un potentiel immense pour les amoureux de la nature. Profitez des belles journées ensoleillées en vous relaxant dans le grand jardin, en organisant des barbecues en famille ou entre amis grâce à une véranda de 38m². De plus, les expositions variées permettent de profiter du soleil à différents moments de la journée.
**Localisation et Commodités**
(20 mn de Vannes et environ 25mn des plages)
Idéalement située à Questembert, vous êtes à proximité des commerces, des écoles, de la gare et des espaces verts.
C'est l'endroit idéal pour créer de merveilleux souvenirs en famille.
**Ce bien d'exception n'attend que vous pour y apporter votre touche personnelle et en faire un véritable havre de paix. Ne manquez pas cette opportunité unique, contactez-nous pour une visite dès maintenant !**
Honoraires d'agence à la charge du vendeur.
Information d'affichage énergétique sur ce bien : classe ENERGIE D indice 181 et classe CLIMAT D indice 34. Les informations sur les risques auxquels ce bien est exposé, y compris l'obligation légale de débroussaillement, sont disponibles sur le site Géorisques : http://www.georisques.gouv.fr.
La présente annonce immobilière a été rédigée sous la responsabilité éditoriale de Mme Stéphanie Hamelin mandataire indépendant en immobilier (sans détention de fonds), agent commercial de la SAS I@D France immatriculé au RSAC de VANNES sous le numéro 509645917, titulaire de la carte de démarchage immobilier pour le compte de la société I@D France SAS.
Mandat : 2019607
Diagnostic de Performance Énergétique (DPE)
Plus d'informations
-
Equipement
- Câble TV
- Cheminée
- Placards
- Chauffage : fuel radiateur
-
Descriptif
- Nbre. d'étages : 3
- Nbre. de chambres : 4
- Nb. Parking : 1
- Nb. de pièces : 7
-
Superficies
- Superficie terrain : 5685 m²
- Surface habitable : 144 m²
-
Etat
- Année de construction : 1973
-
Conditions
- Honoraires à charge de : vendeur
Localisation
Contactez nous
Pour plus d'informations sur cette annonce, n'hésitez pas à nous contacter