Vente
Maison
à
Pornic
685 000 €
Pornic (44210)
iad France - Fabienne Goncalves (06 19 40 85 37) vous propose : SAINTE-MARIE-SUR-MER - MAISON - 5 CHAMBRES - GARAGE - JARDIN
Idéalement située à proximité du centre bourg de Sainte-Marie-sur-mer, cette maison offre un cadre de vie agréable, permettant d'accéder facilement à pied aux commerces, aux services ainsi qu'au littoral.
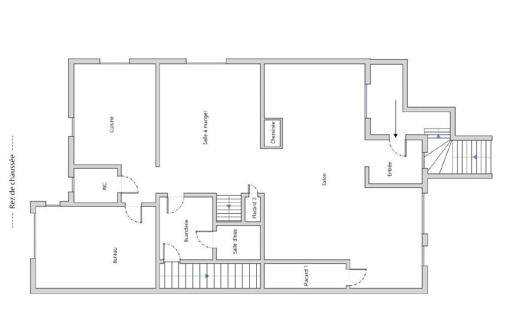
Au Rez de chaussée, vous trouverez une entrée avec placard, un salon séjour avec cheminée, une salle à manger, une cuisine indépendante, une buanderie, une salle d'eau, un Wc, ainsi qu'une chambre spacieuse.
A l'étage , quatre chambres supplémentaires dont une avec terrasse, ainsi qu'une salle de bains avec douche complètent l'espace nuit.
Le sous-sol dispose d'une cave, d'une pièce annexe et d'un garage.
L'ensemble est implanté sur un terrain clos de plus de 700 M2 environ offrant un bel espace extérieur avec terrasse et SPA.
Une maison à découvrir sans tarder !
Je suis disponible pour vos questions et visites, afin de vous assurer le meilleur suivi .
Honoraires d’agence à la charge du vendeur.Information d'affichage énergétique sur ce bien : classe ENERGIE D indice 235 et classe CLIMAT B indice 7. Les informations sur les risques auxquels ce bien est exposé sont disponibles sur le site Géorisques : www.georisques.gouv.fr. La présente annonce immobilière a été rédigée sous la responsabilité éditoriale de Mme Fabienne Goncalves EI (ID 22411), mandataire indépendant en immobilier (sans détention de fonds), agent commercial de la SAS I@D France immatriculé au RSAC de SAINT NAZAIRE sous le numéro 797860350, titulaire de la carte de démarchage immobilier pour le compte de la société I@D France SAS. Le présent bien est commercialisé dans le cadre d'une délégation de mandat.
Retrouvez tous nos biens sur notre site internet. www.iadfrance.fr
Mandat : 1714251
Diagnostic de Performance Énergétique (DPE)
Plus d'informations
-
Equipement
- Cheminée
- Placards
- Chauffage : electrique radiateur
-
Descriptif
- Terrasse
- Nbre. de chambres : 4
- Nb. de pièces : 5
-
Superficies
- Superficie terrain : 724 m²
- Surface habitable : 144 m²
-
Conditions
- Honoraires à charge de : vendeur
Localisation
Contactez nous
Pour plus d'informations sur cette annonce, n'hésitez pas à nous contacter