Vente
Maison de ville
à
Chambly
185 000 €
Chambly (60230)
iad France - Mathilde Groell vous propose: En Exclusivité - Maison de Ville à Fort Potentiel - Chambly Centre
Et si vous donniez vie à votre propre vision de l'habitat ?
Située en plein cOEur de Chambly, cette maison de ville d'environ 100 m² est bien plus qu'un simple bien immobilier : c'est une page blanche. Pour les amateurs de rénovation totale, les investisseurs chevronnés ou les familles souhaitant façonner leur intérieur de A à Z, cette exclusivité représente une opportunité rare sur un secteur recherché.
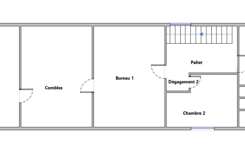
Un potentiel de transformation exceptionnel
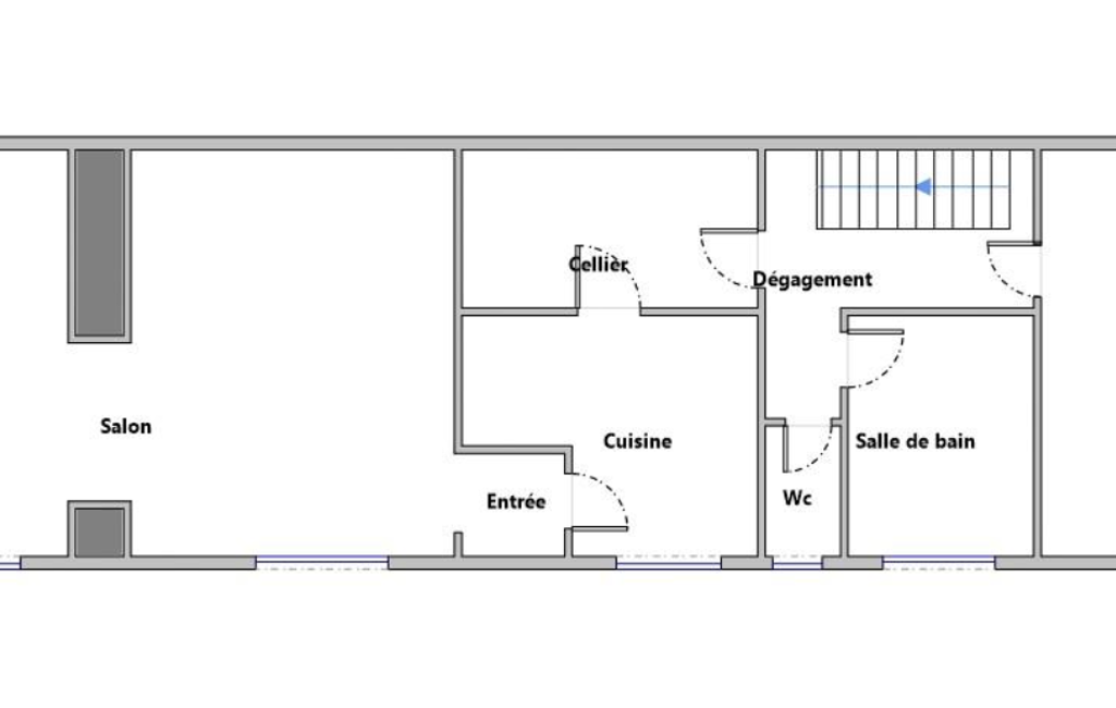
Dès l'entrée, le volume se dévoile avec un double séjour lumineux et une salle à manger attenante. La cuisine séparée, complétée par un cellier, demande à être repensée pour devenir le cOEur battant de la maison. L'atout majeur de ce bien réside dans sa modularité : la configuration actuelle permet d'envisager un véritable espace de vie de plain-pied, un critère de plus en plus prisé.
À l'étage, l'espace nuit propose trois chambres. Pour ceux qui voient plus grand, les combles aménageables ouvrent des perspectives fascinantes : une suite parentale majestueuse ou deux pièces supplémentaires peuvent y voir le jour, portant la surface habitable à un tout autre niveau.
Un extérieur privilégié en centre-ville
À l'extérieur, le terrain de 201 m² cache un trésor pour la vie citadine : une terrasse exposée plein sud, promesse de moments conviviaux à l'abri des regards.
Côté logistique, la maison ne fait aucun compromis avec un grand garage et la possibilité de stationner un second véhicule devant la propriété.
Un projet d'envergure pour un résultat sur-mesure
Il est important de souligner que ce bien est destiné à ceux qui n'ont pas peur des défis. Des travaux de rénovation globale sont à prévoir avant d'envisager d'y poser ses valises. C'est précisément ce qui fait sa force : une structure solide, une localisation idéale dans le centre de Chambly, et la liberté totale de choisir vos matériaux, votre agencement et vos finitions.
Avis aux investisseurs et bâtisseurs de projets : Ce bien nécessite un investissement en travaux à la hauteur de son potentiel, mais la valeur finale, une fois rénovée, en fera une pièce unique sur le marché local.
Les photos suggèrent les volumes, mais c'est une visite sur place qui vous permettra de tracer les plans de votre futur projet.
Contactez-moi pour explorer ensemble le potentiel de cette maison de ville et organiser une visite.
Honoraires d'agence à la charge du vendeur.
Information d'affichage énergétique sur ce bien : classe ENERGIE G indice 441 et classe CLIMAT F indice 98. Les informations sur les risques auxquels ce bien est exposé, y compris l'obligation légale de débroussaillement, sont disponibles sur le site Géorisques : http://www.georisques.gouv.fr.
La présente annonce immobilière a été rédigée sous la responsabilité éditoriale de Mme Mathilde Groell mandataire indépendant en immobilier (sans détention de fonds), agent commercial de la SAS I@D France immatriculé au RSAC de PONTOISE sous le numéro 992085647, titulaire de la carte de démarchage immobilier pour le compte de la société I@D France SAS.
Mandat : 1979751
Diagnostic de Performance Énergétique (DPE)
Plus d'informations
-
Descriptif
- Terrasse
- Nbre. d'étages : 2
- Nbre. de chambres : 3
- Nb. Parking : 1
- Nb. de pièces : 5
-
Superficies
- Surface du balcon : 3.85 m²
- Surface terrasse : 60 m²
- Superficie terrain : 201 m²
- Surface habitable : 99 m²
-
Equipement
- Chauffage : gaz radiateur
-
Etat
- Année de construction : 1900
-
Conditions
- Honoraires à charge de : vendeur
Localisation
Contactez nous
Pour plus d'informations sur cette annonce, n'hésitez pas à nous contacter