Vente
Appartement
à
Bordeaux
145 000 €
Bordeaux (33300)
iad France - Séverine Guelpa vous propose: Grand studio 41,7 m² avec parking – Fonctionnel et idéalement situé – Bordeaux Ravezies
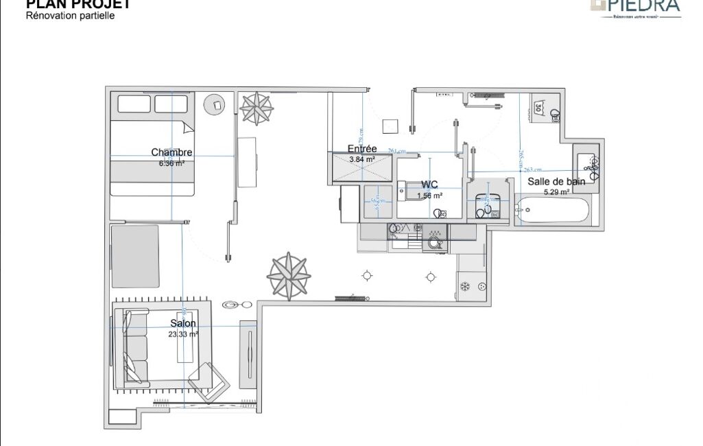
En exclusivité, au cOEur du quartier dynamique de Bordeaux Ravezies, ce studio de 41,7 m² offre une belle base pour un projet immobilier fiable et bien pensé.
Situé en rez-de-chaussée surélevé d’une résidence sécurisée et entretenue, il bénéficie d’un agencement efficace et d’une surface confortable, rare pour un studio.
L’espace de vie permet d’imaginer facilement une organisation avec coin nuit distinct, pour un quotidien plus structuré et agréable.
Un projet d’aménagement a d’ailleurs été étudié afin d’optimiser pleinement le potentiel du bien (devis disponible).
👉 Un appartement avant tout pratique et facile à vivre, qui conviendra parfaitement à un usage principal, mixte ou locatif longue durée.
La présence d’une seule ouverture renforce le côté cocon et limite les nuisances extérieures, un vrai atout pour ceux qui recherchent calme et intimité en milieu urbain.
Une place de parking privative complète ce bien, élément particulièrement recherché sur le secteur.
📍 Un emplacement stratégique et connecté :
– Tram C à proximité immédiate
– Bus express H au pied de l’immeuble
– Accès rapide aux quais et à la rocade
– Commerces, clinique Bordeaux Nord et établissements d’enseignement à deux pas
💡 Ce qu’il faut retenir :
Un bien accessible, bien situé, avec de vraies possibilités d’optimisation et une demande locative constante sur le secteur.
➡️ Idéal pour un premier investissement sécurisé ou un pied-à-terre fonctionnel à Bordeaux.
La presente annonce immobiliere vise 2 lots situés dans une copropriété de 168 lots au total et ne faisant l'objet d'aucune procédure en cours citée à l'article L. 721-1 du code de la construction et de l'habitation. Montant moyen mensuel de charges déclaré par le vendeur : 70€ par mois (soit 840 € annuel). Honoraires d'agence à la charge du vendeur.
Information d'affichage énergétique sur ce bien : classe ENERGIE C indice 155 et classe CLIMAT A indice 4. Les informations sur les risques auxquels ce bien est exposé, y compris l'obligation légale de débroussaillement, sont disponibles sur le site Géorisques : http://www.georisques.gouv.fr.
La présente annonce immobilière a été rédigée sous la responsabilité éditoriale de Mme Séverine Guelpa mandataire indépendant en immobilier (sans détention de fonds), agent commercial de la SAS I@D France immatriculé au RSAC de Bordeaux sous le numéro 930221510, titulaire de la carte de démarchage immobilier pour le compte de la société I@D France SAS.
Mandat : 1685588
Diagnostic de Performance Énergétique (DPE)
Plus d'informations
-
Equipement
- Digicode
- Placards
- Chauffage : individuel electrique radiateur
- Interphone
-
Descriptif
- Ascenseur
- Nbre. d'étages : 5
- Nb. Parking : 1
- Nb. de pièces : 1
-
Loi ALUR
- Copropriété
- Nombre de lots de la copropriété : 168
- Moyenne de la quote part(an) : 840 €
-
Etat
- Année de construction : 2004
-
Conditions
- Honoraires à charge de : vendeur
-
Superficies
- Surface habitable : 41 m²
Localisation
Contactez nous
Pour plus d'informations sur cette annonce, n'hésitez pas à nous contacter