Vente
Maison
à
Vitry-sur-Seine
715 000 €
Vitry-sur-Seine (94400)
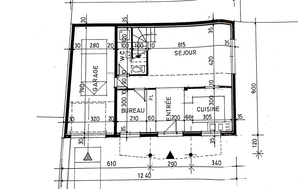
iad France - Fang Zhang vous propose: Construit en 2004 avec des matériaux nobles, cette maison d’environ 131 m² habitables, avec 44 m² de combles aménageables, est édifiée sur un terrain cadastré de 277 m².
Proche de toutes commodités : écoles, commerces et transports.
Au rez-de-chaussée, elle se compose d’une entrée, d’un double séjour, d’une cuisine équipée et aménagée, d’une salle d’eau avec WC, ainsi que d’un parking fermé.
À l’étage, vous trouverez quatre chambres, une salle de bains avec WC, ainsi qu’un balcon de 9,4 m².
Les combles, d’une surface d’environ 44 m², offrent un fort potentiel d’aménagement après travaux, notamment par l’ajout d’un escalier et de velux, permettant la création d’un espace habitable supplémentaire.
Idéalement située dans un quartier pavillonnaire, la maison se trouve à 8 à 10 minutes du tramway T9 – Musée MAC VAL et de la future ligne 15, ainsi qu’à 13 minutes du métro Louis Aragon.
Un jardin sans aucun vis-à-vis vient compléter les atouts de cette charmante maison.
Honoraires d'agence à la charge du vendeur.
Information d'affichage énergétique sur ce bien : classe ENERGIE D indice 151 et classe CLIMAT D indice 30. Les informations sur les risques auxquels ce bien est exposé, y compris l'obligation légale de débroussaillement, sont disponibles sur le site Géorisques : http://www.georisques.gouv.fr.
La présente annonce immobilière a été rédigée sous la responsabilité éditoriale de Mme Fang Zhang mandataire indépendant en immobilier (sans détention de fonds), agent commercial de la SAS I@D France immatriculé au RSAC de Créteil sous le numéro 513105601, titulaire de la carte de démarchage immobilier pour le compte de la société I@D France SAS.
Mandat : 1936739
Diagnostic de Performance Énergétique (DPE)
Plus d'informations
-
Descriptif
- Nbre. d'étages : 2
- Nb. de pièces : 6
-
Superficies
- Superficie terrain : 273 m²
- Surface habitable : 130 m²
-
Etat
- Année de construction : 2004
-
Conditions
- Honoraires à charge de : vendeur
Localisation
Contactez nous
Pour plus d'informations sur cette annonce, n'hésitez pas à nous contacter