Vente
Appartement
à
Arnouville
129 900 €
Arnouville (95400)
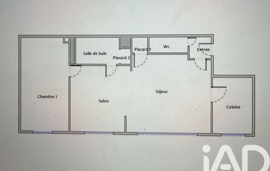
iad France - Michael Gravinese vous propose: Cet appartement de 52 m², situé au deuxième étage, en plein Coeur du centre-ville, se trouve dans une résidence fermée et sécurisée, à seulement 5 minutes à pied de la gare. Dès l'entrée, vous découvrirez un spacieux séjour baigné de lumière naturelle, avec son balcon, ainsi qu’un espace de rangement, une cuisine, des WC séparés et une pièce buanderie. Le coin nuit dispose d'une chambre lumineuse, ainsi que d’une salle de bain. Afin de compléter ce bien, une cave est également incluse. N'attendez plus ! Contactez-moi dès maintenant pour organiser une visite et découvrir cet appartement qui ne manquera pas de vous séduire.
La presente annonce immobiliere vise 2 lots situés dans une copropriété de 32 lots au total et ne faisant l'objet d'aucune procédure en cours citée à l'article L. 721-1 du code de la construction et de l'habitation. Montant moyen mensuel de charges déclaré par le vendeur : 250€ par mois (soit 3000 € annuel). Honoraires d'agence à la charge du vendeur.
Information d'affichage énergétique sur ce bien : classe ENERGIE E indice 228 et classe CLIMAT E indice 58. Les informations sur les risques auxquels ce bien est exposé, y compris l'obligation légale de débroussaillement, sont disponibles sur le site Géorisques : http://www.georisques.gouv.fr.
La présente annonce immobilière a été rédigée sous la responsabilité éditoriale de M Michael Gravinese mandataire indépendant en immobilier (sans détention de fonds), agent commercial de la SAS I@D France immatriculé au RSAC de PONTOISE sous le numéro 918566282, titulaire de la carte de démarchage immobilier pour le compte de la société I@D France SAS.
Mandat : 1959564
Diagnostic de Performance Énergétique (DPE)
Plus d'informations
-
Equipement
- Câble TV
- Digicode
- Chauffage : collectif electrique
- Interphone
-
Descriptif
- Nbre. d'étages : 3
- Nbre. de chambres : 2
- Nb. de pièces : 3
-
Loi ALUR
- Copropriété
- Nombre de lots de la copropriété : 32
- Moyenne de la quote part(an) : 3 000 €
-
Etat
- Année de construction : 1980
-
Conditions
- Honoraires à charge de : vendeur
-
Superficies
- Surface habitable : 52 m²
Localisation
Contactez nous
Pour plus d'informations sur cette annonce, n'hésitez pas à nous contacter