Vente
Maison
à
Marseille
311 000 €
Marseille (13013)
iad France - Corinne Pichou vous propose: Maison avec local loué – investissement et résidence principale – Marseille 13e
Marseille 13e Saint Jérôme – Secteur recherché
Découvrez cette maison non mitoyenne, pleine de charme datant de 1912, parfaitement entretenue, offrant 87 m² habitables sur un terrain de 240 m².
Ce bien rare allie résidence principale et rapport locatif, idéal pour un investissement sécurisé ou un projet familial.
Rez-de-chaussée : local commercial loué 550 € hors charges, le locataire est en place depuis plusieurs années
Le locataire participe à hauteur de 50 % de la taxe foncière
Un revenu locatif immédiat et pérenne, sans travaux à prévoir
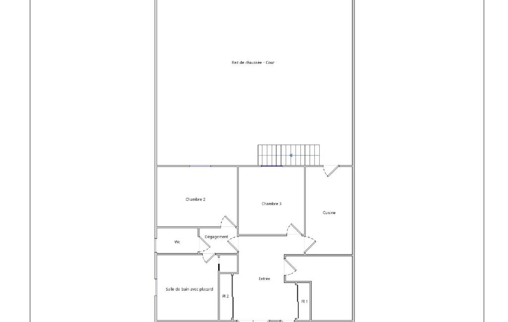
Étage : habitation principale lumineuse et confortable
Hall d’entrée spacieux avec deux grands placards
Cuisine aménagée et équipée
Séjour avec cheminée, convivial et chaleureux
Trois chambres, une avec placards
Grande salle de bains avec douche, baignoire et WC
WC indépendant supplémentaire
Extérieur
Jardin clos offrant un agréable espace de détente, possibilité de renter deux véhicules à l'intérieur
Dépendance de 18 m² pouvant être aménagée en studio indépendant, bureau ou atelier selon vos besoins
Les atouts :
Chauffage central gaz de ville
Menuiseries PVC
Nombreux rangements
Maison saine et bien entretenue
Rapport locatif déjà en place
Fort potentiel avec dépendance à aménager
Idéal pour une famille souhaitant un revenu complémentaire ou une belle opportunité d'investissement en louant l'ensemble du bien, local + maison principale, le rendement locatif potentiel atteint près de 7 % .
Pour plus de renseignements ou organiser une visite, n’hésitez pas à me contacter — je serai ravie de vous faire découvrir cette maison à fort potentiel !
Honoraires d'agence à la charge du vendeur.
Information d'affichage énergétique sur ce bien : classe ENERGIE E indice 255 et classe CLIMAT E indice 56. Les informations sur les risques auxquels ce bien est exposé, y compris l'obligation légale de débroussaillement, sont disponibles sur le site Géorisques : http://www.georisques.gouv.fr.
La présente annonce immobilière a été rédigée sous la responsabilité éditoriale de Mme Corinne Pichou mandataire indépendant en immobilier (sans détention de fonds), agent commercial de la SAS I@D France immatriculé au RSAC de Salon de Provence sous le numéro 514825470, titulaire de la carte de démarchage immobilier pour le compte de la société I@D France SAS.
Mandat : 1884003
Diagnostic de Performance Énergétique (DPE)
Plus d'informations
-
Descriptif
- Nbre. d'étages : 1
- Nbre. de chambres : 3
- Nb. de pièces : 4
-
Equipement
- Cheminée
- Chauffage : gaz
-
Superficies
- Superficie terrain : 240 m²
- Surface habitable : 87 m²
-
Etat
- Année de construction : 1912
-
Conditions
- Honoraires à charge de : vendeur
Localisation
Contactez nous
Pour plus d'informations sur cette annonce, n'hésitez pas à nous contacter