Vente
Maison
à
Galapian
180 000 €
Galapian (47190)
iad France - Ana Alexandra Cerejo vous propose: Maison de plain-pied de 2006 : espace, calme et potentiel de construction
Située dans un environnement privilégié au calme, cette maison de plain-pied construite en 2006 offre un cadre de vie sain et parfaitement entretenu. Idéalement placée à seulement 15 minutes de l’accès autoroutier et 30 minutes de la gare TGV d’Agen, elle concilie cadre champêtre et proximité des .
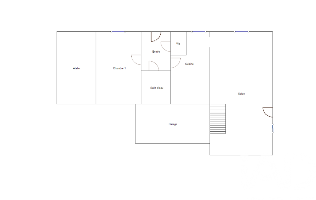
Dès l’entrée, vous découvrirez une grande pièce de vie avec sa cuisine et son cellier, véritable cOEur de la maison agrémentée d’un poêle à bois canadien de haute performance qui assure une atmosphère chaleureuse. L'espace nuit se compose de trois chambres et d'un bureau, complétés par une salle de bains avec une baignoire et une douche.
Le bien a bénéficié en 2013 d’une extension qui augmente le potentiel d'évolution de la maison. Elle propose une pièce supplémentaire de 38 m² faisant office de buanderie et de rangement, ainsi qu'un vaste garage de 40 m² déjà équipé d’une borne de recharge pour véhicule électrique.
Un grenier accessible offre également des solutions de stockage complémentaires.
Techniquement irréprochable, l'habitation est équipée du double vitrage, de la fibre optique et d'un système de chauffage polyvalent alliant bois, électricité centralisée et deux climatisations réversibles. Le raccordement au tout-à-l'égout et une isolation soignée garantissent un confort de vie immédiat sans travaux à prévoir.
L'extérieur ne manque pas d'atouts : son terrain de 3650 m², dégagé et verdoyant, se situe intégralement en zone constructible (CU en cours) offrant ainsi de réelles opportunités d'agrandissement, de projet de construction secondaire ou simplement un vaste espace de liberté.
Une maison fonctionnelle et évolutive, prête à accueillir vos projets.
Honoraires d'agence à la charge du vendeur.
Information d'affichage énergétique sur ce bien : classe ENERGIE C indice 136 et classe CLIMAT A indice 4. Les informations sur les risques auxquels ce bien est exposé, y compris l'obligation légale de débroussaillement, sont disponibles sur le site Géorisques : http://www.georisques.gouv.fr.
La présente annonce immobilière a été rédigée sous la responsabilité éditoriale de Mme Ana Alexandra Cerejo mandataire indépendant en immobilier (sans détention de fonds), agent commercial de la SAS I@D France immatriculé au RSAC de Agen sous le numéro 842641912, titulaire de la carte de démarchage immobilier pour le compte de la société I@D France SAS.
Mandat : 1995626
Diagnostic de Performance Énergétique (DPE)
Plus d'informations
-
Descriptif
- Nbre. d'étages : 1
- Nbre. de chambres : 3
- Nb. de pièces : 7
-
Equipement
- Chauffage : electrique radiateur
- Climatisation
-
Superficies
- Superficie terrain : 3650 m²
- Surface habitable : 131 m²
-
Etat
- Année de construction : 2006
-
Conditions
- Honoraires à charge de : vendeur
Localisation
Contactez nous
Pour plus d'informations sur cette annonce, n'hésitez pas à nous contacter