Vente
Appartement
à
Antibes
719 000 €
Antibes (06600)
iad France - Matthieu Chionchini (06 52 78 35 06) vous propose : Superbe 4 pièces avec double balcon et parking – Antibes (06600)
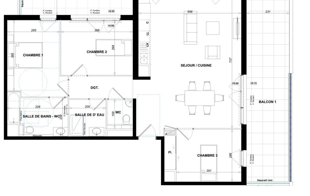
Situé dans un quartier calme et recherché d’Antibes, ce magnifique appartement 4 pièces au 4? étage offre un confort de vie rare grâce à ses volumes généreux, sa luminosité naturelle et ses deux grands balcons totalisant 35,3 m² environ.
Ce bien est idéal pour une famille ou un investissement locatif haut de gamme sur un secteur porteur.
D’une surface habitable de 92,5 m² environ, il se compose de :
•Un séjour-cuisine spacieux de 41,3 m² environ,
•Trois chambres confortables de 12,05 m² environ, 11,55 m² environ et 11,15 m² environ,
•Une salle de bains avec WC de 6,45 m² environ,
•Une salle d’eau supplémentaire de 3,95 m² environ,
•Un dégagement pratique de 4,20 m² environ et un WC indépendant de 1,85 m² environ.
L’appartement bénéficie d’une exposition sud-est, assurant une belle luminosité toute la journée, et s’ouvre sur deux balcons accessibles depuis le séjour et les chambres.
Une place de parking privative en sous-sol complète ce bien.
Le chauffage électrique individuel permet une gestion simple et maîtrisée des charges.
________________________________________
???? Informations financières
•Prix de vente : 719 000 €
•Frais de notaire à la charge du vendeur
•Surface habitable : 92,5 m² environ
•Surface extérieure : 35,3 m² environ (2 balcons)
•Stationnement : 1 place privative en sous-sol
________________________________________
???? Rentabilité locative estimée
Avec un loyer de marché estimé autour de 1 480 € par mois, ce bien présente une rentabilité brute d’environ 2,5 %.
Son emplacement stratégique à proximité des commerces, des écoles et de Sophia-Antipolis garantit une demande locative solide, ainsi qu’une valorisation patrimoniale à long terme.
________________________________________
?? Les points forts
•Séjour spacieux de plus de 41 m² environ
•Deux balcons totalisant plus de 35 m² environ
•Trois chambres confortables
•Deux salles d’eau + WC séparé, un vrai atout pour la vie de famille
•Parking sécurisé en sous-sol inclus
•Frais de notaire à la charge du vendeur
•Exposition sud-est offrant une belle luminosité
•Excellent rapport surface / confort / emplacement
Honoraires d’agence à la charge du vendeur. Bien non soumis au DPE. Les informations sur les risques auxquels ce bien est exposé sont disponibles sur le site Géorisques : www.georisques.gouv.fr. La présente annonce immobilière a été rédigée sous la responsabilité éditoriale de M. Matthieu Chionchini EI (ID 85877), mandataire indépendant en immobilier (sans détention de fonds), agent commercial de la SAS I@D France immatriculé au RSAC de Grasse sous le numéro 752939330, titulaire de la carte de démarchage immobilier pour le compte de la société I@D France SAS.
Retrouvez tous nos biens sur notre site internet. www.iadfrance.fr
Mandat : 1863394-27
Diagnostic de Performance Énergétique (DPE)
Plus d'informations
-
Conditions
- Honoraires à charge de : vendeur
-
Descriptif
- Nb. de pièces : 4
-
Superficies
- Surface habitable : 93 m²
Localisation
Contactez nous
Pour plus d'informations sur cette annonce, n'hésitez pas à nous contacter