Vente
Appartement
à
Nice
378 000 €
Nice (06000)
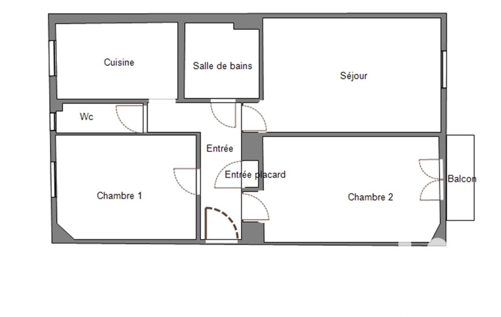
iad France - Philippe Tran vous propose: Superbe appartement T3 de 63,76 m² situé au 2ème étage d'un immeuble bourgeois construit en 1905, dans le quartier Libération. Ce bien lumineux bénéficie d'une double exposition Sud-Nord et d'un balcon.
L'appartement comprend 2 chambres, une cuisine, un séjour spacieux, une salle de bain et des WC séparés. Il est équipé d'un système de climatisation et chauffage, garantissant un confort optimal toute l'année.
Excellente performance énergétique avec un DPE classe B (89 kWhep/m².an) et GES classe A (3 kgeqCO2/m².an).
Idéalement situé à proximité des commodités et transports. A 5 minutes de la gare et du tram. Bien libre de toute occupation.
Copropriété de 133€ de charges mensuelles, taxe foncière de 702€ annuels.
Bonne rentabilité Airbnb CA 10.000e pendant l'été.
La presente annonce immobiliere vise 1 lot situé dans une copropriété de 24 lots au total et ne faisant l'objet d'aucune procédure en cours citée à l'article L. 721-1 du code de la construction et de l'habitation. Montant moyen mensuel de charges déclaré par le vendeur : 133.33€ par mois (soit 1600 € annuel). Honoraires d'agence à la charge du vendeur.
Information d'affichage énergétique sur ce bien : classe ENERGIE B indice 89 et classe CLIMAT A indice 3. Les informations sur les risques auxquels ce bien est exposé, y compris l'obligation légale de débroussaillement, sont disponibles sur le site Géorisques : http://www.georisques.gouv.fr.
La présente annonce immobilière a été rédigée sous la responsabilité éditoriale de M Philippe Tran mandataire indépendant en immobilier (sans détention de fonds), agent commercial de la SAS I@D France immatriculé au RSAC de NICE sous le numéro 513905109, titulaire de la carte de démarchage immobilier pour le compte de la société I@D France SAS.
Mandat : 1951435
Diagnostic de Performance Énergétique (DPE)
Plus d'informations
-
Descriptif
- Étage du bien : 2eme
- Nbre. d'étages : 3
- Nbre. de chambres : 2
- Nb. de pièces : 3
-
Equipement
- Placards
- Chauffage : individuel electrique
- Interphone
- Climatisation
-
Loi ALUR
- Copropriété
- Nombre de lots de la copropriété : 24
- Moyenne de la quote part(an) : 1 600 €
-
Etat
- Année de construction : 1905
-
Conditions
- Honoraires à charge de : vendeur
-
Superficies
- Surface habitable : 63 m²
Localisation
Contactez nous
Pour plus d'informations sur cette annonce, n'hésitez pas à nous contacter