Vente
Maison
à
Seraincourt
375 000 €
Seraincourt (95450)
iad France - Jennifer Benitez vous propose: Maison individuelle avec double espace de vie sur parcelle de 1388 m²
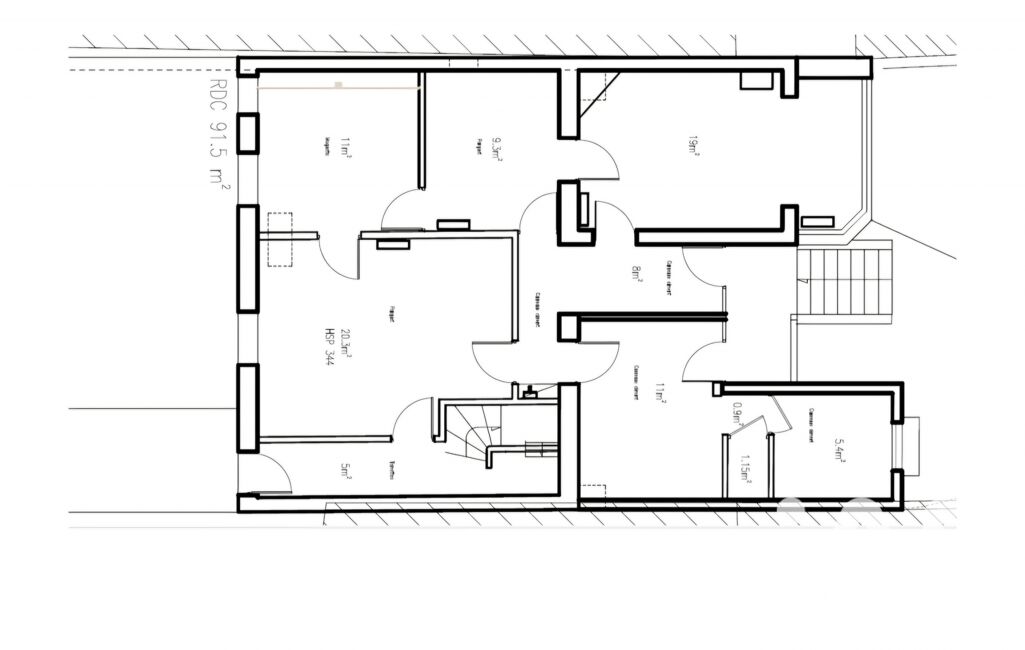
Découvrez cette maison individuelle pleine de potentiel offrant une surface habitable principale de 119 m², complétée par un second espace indépendant de 90 m². Idéal pour une grande famille, une activité professionnelle à domicile ou un projet locatif !
Au rez-de-chaussée :
Vous serez séduit par un grand séjour convivial, une cuisine entièrement aménagée, ainsi que 2 chambres confortables et une salle de douche.
En rez-de-jardin :
Un espace de vie supplémentaire composé d’un séjour lumineux, d’une cuisine partiellement aménagée, d’une chambre, d’un bureau et d’une salle de douche. Parfait pour recevoir, télétravailler ou créer un logement indépendant.
Implantée sur une belle parcelle de 1388 m², la propriété dispose également d’une spacieuse terrasse de 60 m² pour profiter des beaux jours.
Cette maison offre un véritable havre de paix, avec la possibilité d'aménager selon vos besoins et vos envies. De plus, la présence de plusieurs places de parking vous assure une grande facilité pour stationner en toute tranquillité.
Ne manquez pas l'opportunité de devenir propriétaire de cette magnifique maison à Seraincourt. Contactez-nous dès maintenant pour organiser une visite et découvrir votre futur chez vous.
Honoraires d'agence à la charge du vendeur.
Information d'affichage énergétique sur ce bien : classe ENERGIE D indice 241 et classe CLIMAT D indice 47. Les informations sur les risques auxquels ce bien est exposé, y compris l'obligation légale de débroussaillement, sont disponibles sur le site Géorisques : http://www.georisques.gouv.fr.
La présente annonce immobilière a été rédigée sous la responsabilité éditoriale de Mme Jennifer Benitez mandataire indépendant en immobilier (sans détention de fonds), agent commercial de la SAS I@D France immatriculé au RSAC de Versailles sous le numéro 984618058, titulaire de la carte de démarchage immobilier pour le compte de la société I@D France SAS.
Mandat : 1948720
Diagnostic de Performance Énergétique (DPE)
Plus d'informations
-
Descriptif
- Terrasse
- Nbre. d'étages : 1
- Nbre. de chambres : 3
- Nb. de pièces : 6
-
Superficies
- Superficie terrain : 1388 m²
- Surface habitable : 209 m²
-
Equipement
- Chauffage : fuel
-
Conditions
- Honoraires à charge de : vendeur
Localisation
Contactez nous
Pour plus d'informations sur cette annonce, n'hésitez pas à nous contacter