Annonce détaillée

Vente
Maison à Vairé
689 000 

Détails du bien

Pièce(s)
10 pièces
Salle(s) de bain
8
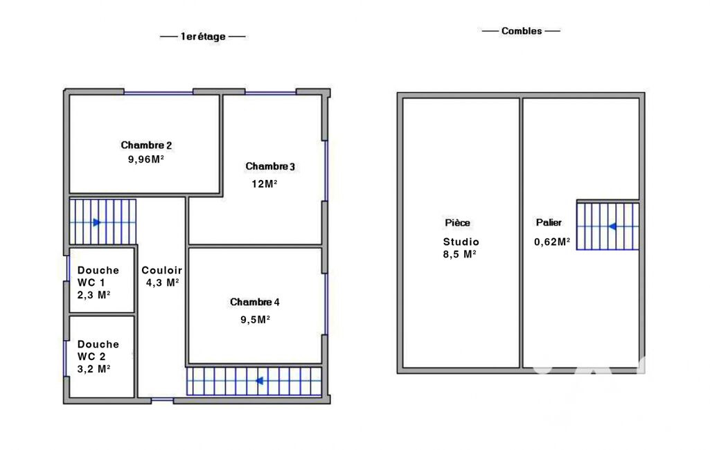
Surface
232 m²
Surface terrain
2226 m²
Orientation
-

Plus d'informations

  • Descriptif
    • Terrasse
    • Nbre. d'étages : 1
    • Nbre. de chambres : 8
    • Nb. de pièces : 10
  • Superficies
    • Superficie terrain : 2226 m²
    • Surface habitable : 232 m²
  • Equipement
    • Chauffage : electrique radiateur
  • Etat
    • Année de construction : 1980
  • Conditions
    • Honoraires à charge de : vendeur

Localisation

Contactez nous

Pour plus d'informations sur cette annonce, n'hésitez pas à nous contacter

Céline Blot

Annonce 4408 / 77566