Vente
Maison
à
Audierne
294 000 €
Audierne (29770)
iad France - Nathalie Segalen vous propose: EN EXCLUSIVITE - AUDIERNE - ESQUIBIEN, A 500 m du port de Sainte-Evette, très belle Vue mer, bien rare, charme de la pierre et cadre privilégié.
À quelques pas à pied de la plage de Saint-Évette et des activités nautiques, découvrez cette maison en pierre pleine de charme, située dans un environnement calme, à la fois champêtre et marin, au cOEur du secteur recherché de Lervily.
Implantée sur un terrain de 1 333 m², jardin entièrement clos de hauts murs en pierre, exposé sud-ouest, arboré, comprenant un grand garage de 36 m2 environ, idéal pour le stationnement et le rangement.
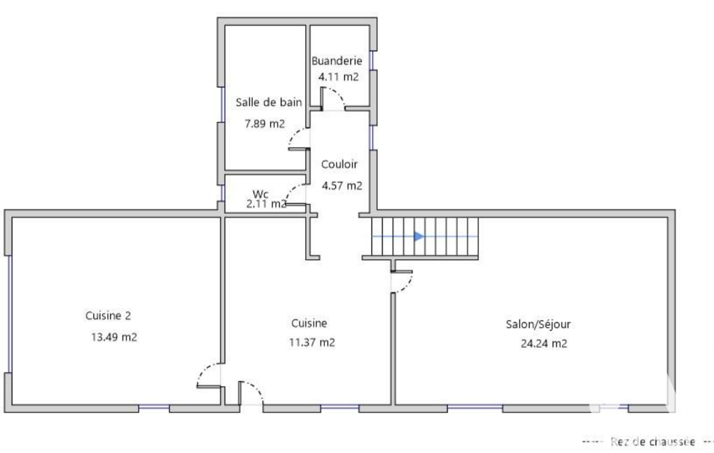
La maison se compose au rez-de-chaussée, d’un salon- séjour chaleureux avec cheminée ouverte, d’une cuisine, cuisine d’été donnant sur la terrasse et le jardin, d’une salle de bains, buanderie et WC indépendant.
À l’étage, vous trouverez trois chambres, dont une avec balcon offrant une vue dominante sur la baie d'Audierne, une pièce pouvant servir de chambre d'enfant ou de bureau, ainsi qu’un cabinet de toilette avec lavabo et un second WC.
À l’extérieur, côté sud-ouest, le jardin clos séduit par son charme et son atmosphère paisible. Une dépendance en pierre d’environ 35 m², à rénover, offre un beau potentiel pour un projet d’atelier ou d’espace indépendant. Côté est, la propriété bénéficie également d'une cour en indivision avec une autre propriété, ainsi que d'un puits en indivision.
La propriété dispose de deux accès.
Chauffage au gaz (cuve), assainissement individuel non conforme (mise en conformité à prévoir), cuve à eau.
Centre d'Audierne à 3 kms pour profiter de ses Halles , commerces et commodités tout au long de l'année. Entre bateaux de pêche et voiliers, le port d'Audierne offre une ambiance vivante et chaleureuse.
Maison idéale pour les amoureux de la mer et de l’authenticité, en résidence principale ou secondaire, avec un beau potentiel d’évolution.
À découvrir sans tarder, visite virtuelle sur demande.
Honoraires d'agence à la charge de l'acquéreur. Prix honoraires inclus : 294000 euros. Prix hors honoraires : 280000 euros. Honoraires TTC à la charge de l'acquéreur (5,00% du prix du bien hors honoraires) : 14000 euros.
Information d'affichage énergétique sur ce bien : classe ENERGIE F indice 293 et classe CLIMAT F indice 74. Les informations sur les risques auxquels ce bien est exposé, y compris l'obligation légale de débroussaillement, sont disponibles sur le site Géorisques : http://www.georisques.gouv.fr.
La présente annonce immobilière a été rédigée sous la responsabilité éditoriale de Mme Nathalie Segalen mandataire indépendant en immobilier (sans détention de fonds), agent commercial de la SAS I@D France immatriculé au RSAC de QUIMPER sous le numéro 514 240 977, titulaire de la carte de démarchage immobilier pour le compte de la société I@D France SAS.
Mandat : 1983425
Diagnostic de Performance Énergétique (DPE)
Plus d'informations
-
Descriptif
- Terrasse
- Nbre. d'étages : 2
- Nbre. de chambres : 4
- Nb. Parking : 1
- Nb. de pièces : 5
-
Conditions
- Honoraires : 14 000 €
- Prix hors honoraires acquéreur : 280 000 €
- Honoraires à charge de : acquéreur
-
Equipement
- Cheminée
- Chauffage : gaz radiateur
-
Superficies
- Superficie terrain : 1333 m²
- Surface habitable : 126 m²
-
Etat
- Année de construction : 1900
Localisation
Contactez nous
Pour plus d'informations sur cette annonce, n'hésitez pas à nous contacter