Vente
Maison de village
à
Marigny
48 000 €
Marigny (51230)
iad France - Jennifer Porcellini vous propose: Charmante maison de village à Marigny - Idéal pour une vie paisible
Viager occupé par un couple
madame 79 ans
monsieur 86 ans
Découvrez cette ravissante maison de village située à Marigny, offrant un cadre de vie authentique et tranquille, propice à la détente et à la sérénité. Construite en 1992, cette maison de 90m² se caractérise par son agencement fonctionnel et son ambiance chaleureuse.
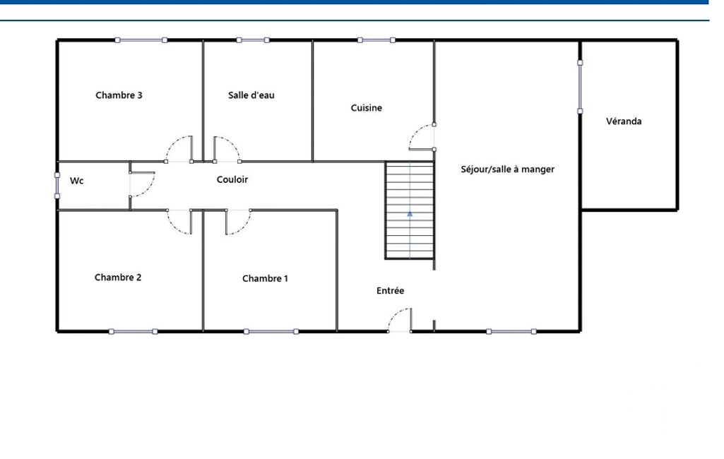
En pénétrant dans cette maison, vous serez immédiatement charmé par ses 3 chambres spacieuses, offrant chacune un espace confortable pour se reposer et se ressourcer. Les pièces de vie telles que le séjour de 31.25m² et la cuisine séparée vous offrent des espaces lumineux et conviviaux pour partager des moments en famille ou entre amis.
Le bien comprend également une salle d'eau et un WC, offrant ainsi un confort optimal pour le quotidien. La maison est bien entretenue et dans un état global bon, prête à accueillir ses nouveaux propriétaires.
Côté extérieur, profitez d'un grand terrain de 5350m², idéal pour les amoureux de la nature et des espaces verts. L'exposition sud de la maison vous permettra de bénéficier d'une luminosité agréable tout au long de la journée.
Les équipements tels que la fibre optique, la télévision par câble et le chauffage individuel au fuel ajoutent une touche de modernité et de confort à cette charmante maison de village.
Pour votre confort, la maison dispose d'un garage, idéal pour stationner votre véhicule en toute sécurité. De plus, la proximité des commodités locales et des espaces naturels environnants rendent cette maison encore plus attrayante pour une vie équilibrée entre tranquillité et praticité.
Ne manquez pas l'opportunité de vivre dans cette belle maison de village à Marigny, un havre de paix où il fait bon vivre. Contactez-nous dès aujourd'hui pour organiser une visite.
Honoraires d'agence à la charge du vendeur.
Information d'affichage énergétique sur ce bien : classe ENERGIE D indice 208 et classe CLIMAT D indice 34. Les informations sur les risques auxquels ce bien est exposé, y compris l'obligation légale de débroussaillement, sont disponibles sur le site Géorisques : http://www.georisques.gouv.fr.
La présente annonce immobilière a été rédigée sous la responsabilité éditoriale de Mme Jennifer Porcellini mandataire indépendant en immobilier (sans détention de fonds), agent commercial de la SAS I@D France immatriculé au RSAC de Reims sous le numéro 450750500, titulaire de la carte de démarchage immobilier pour le compte de la société I@D France SAS.
Mandat : 2005758
Diagnostic de Performance Énergétique (DPE)
Plus d'informations
-
Equipement
- Câble TV
- Chauffage : fuel radiateur
-
Descriptif
- Nbre. de chambres : 3
- Nb. de pièces : 5
-
Superficies
- Superficie terrain : 5350 m²
- Surface habitable : 90 m²
-
Etat
- Année de construction : 1992
-
Conditions
- Honoraires à charge de : vendeur
Localisation
Contactez nous
Pour plus d'informations sur cette annonce, n'hésitez pas à nous contacter