Vente
Maison
à
Orgeval
530 000 €
Orgeval (78630)
iad France - Marie Benita-Szczepanski vous propose: À Orgeval, dans les hauteurs – Charmante maison ancienne avec potentiel.
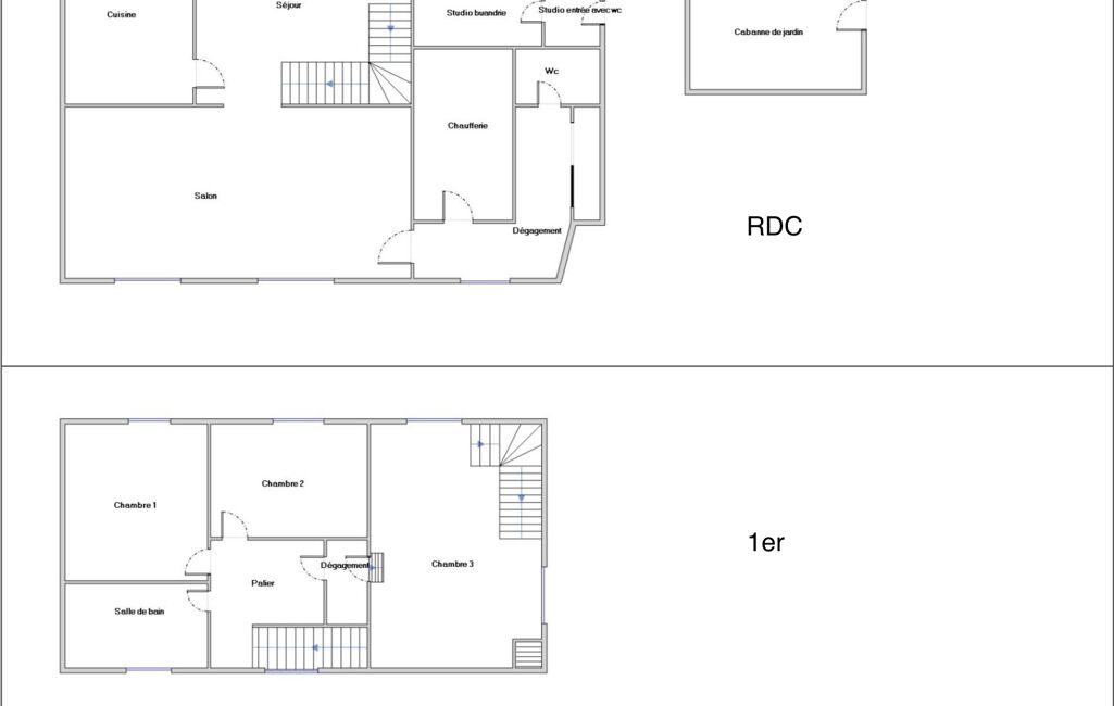
Maison comprenant 4 chambres, jardin avec terrasse
SURFACES : 228 m ² au sol, 165 m2 habitables.
RDC : entrée/séjour, salle à manger, cuisine séparée, wc.
1ER : palier desservant 3 chambres, wc, salle de bain avec douche et baignoire
Avec une entrée indépendante un studio, avec salle de douche, wc et buanderie.
La maison nécessite des travaux de rénovation afin de la mettre à votre goût et d’optimiser son potentiel.
PRESTATIONS : chauffage fioul, volets bois, visiophone.
EXTÉRIEURS : terrain de 500 m ² clos et paysagé, avec haies, terrasse
portail électrique.
STATIONNEMENT : parking deux voitures
SECTEUR : Montamets
Écoles maternelles et primaires dans le village.
Collège à Chambourcy
Accès autoroute A13 et A14 à 5 min en voiture.
Bus à 100 m
Paris – porte Maillot à 30 min en voiture.
Centre ville avec toutes les commodités à 1km
À 20 minutes de Poissy
Horaires de visite adaptés à votre emploi du temps du lundi au dimanche.
Professionnels de l'immobilier, je serai ravie de collaborer avec vous pour faire découvrir ce bien à vos clients.
Honoraires d'agence à la charge du vendeur.
Information d'affichage énergétique sur ce bien : classe ENERGIE G indice 362 et classe CLIMAT G indice 114. Les informations sur les risques auxquels ce bien est exposé, y compris l'obligation légale de débroussaillement, sont disponibles sur le site Géorisques : http://www.georisques.gouv.fr.
La présente annonce immobilière a été rédigée sous la responsabilité éditoriale de Mme Marie Benita-Szczepanski mandataire indépendant en immobilier (sans détention de fonds), agent commercial de la SAS I@D France immatriculé au RSAC de Versailles sous le numéro 929919314, titulaire de la carte de démarchage immobilier pour le compte de la société I@D France SAS.
Mandat : 1985478
Diagnostic de Performance Énergétique (DPE)
Plus d'informations
-
Descriptif
- Terrasse
- Nbre. d'étages : 3
- Nbre. de chambres : 3
- Nb. Parking : 1
- Nb. de pièces : 7
-
Equipement
- Placards
- Chauffage : fuel radiateur
-
Superficies
- Superficie terrain : 533 m²
- Surface habitable : 165 m²
-
Etat
- Année de construction : 1800
-
Conditions
- Honoraires à charge de : vendeur
Localisation
Contactez nous
Pour plus d'informations sur cette annonce, n'hésitez pas à nous contacter