Vente
Appartement
à
Vichy
249 896 €
Vichy (03200)
iad France - Sarah Rozière (06 99 86 19 42) vous propose : Appartement T4 avec balcon et parking à Vichy
Découvrez Ressource, une résidence située boulevard des Romains à Vichy, au cOEur d’un environnement calme et verdoyant, à proximité immédiate du centre-ville, des établissements thermaux et des bords de l’Allier. Cette adresse privilégiée incarne le bien-être à la vichyssoise, dans une ville inscrite au patrimoine mondial de l’UNESCO, réputée pour son art de vivre, son patrimoine Belle Époque et sa douceur de vie. Disponible 2027.
Un appartement fonctionnel et lumineux
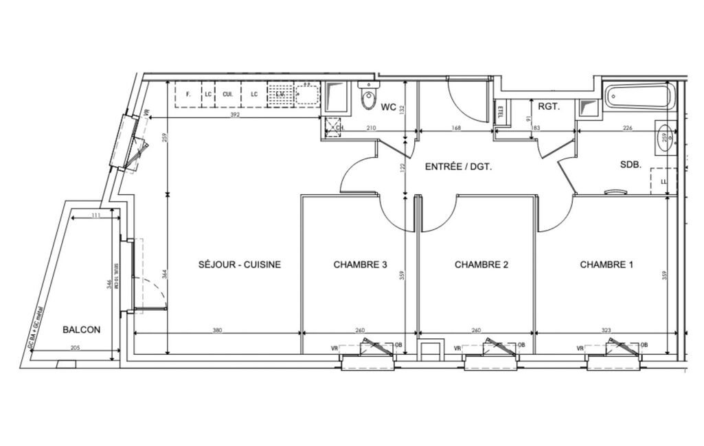
Situé au 4ème étage, cet appartement T4 de 73,20 m² environ habitables propose un espace optimisé et prolongé par un balcon.
- Séjour / cuisine : 26,40 m² environ
- Chambre 1 : 11,60 m² environ
- Chambre 2 : 9,10 m² environ
- Chambre 3 : 9,30 m² environ
- Salle de bain : 5,35 m² environ
- Balcon : 5,45 m² environ
De belles prestations
- Sols PVC imitation parquet
- Menuiseries avec volets roulants
- Chauffage individuel au gaz
- Salle d’eau entièrement équipée avec sèche-serviettes
- Portes sécurisées 3 points
- Parking extérieur inclus
Conçue selon la réglementation environnementale et certifiée NF Habitat, la résidence garantit des performances énergétiques optimales, un confort thermique accru et une empreinte écologique maîtrisée.
L’art de vivre à Vichy
- Proximité immédiate de toutes les commodités
- Proche du centre commercial Les Quatre Chemins, du Grand Marché, des parcs Napoléon III et des Sources
- Établissements thermaux à quelques minutes à pied ou à vélo
- Arrêt de bus “Saint-Jean-Baptiste” à 4 min à pied
- Gare TER de Vichy à 4 min à vélo
- Accès rapide aux axes A719 et N7
Vichy, surnommée la reine des villes thermales, offre un cadre de vie d’exception entre nature, culture et vitalité. Avec son patrimoine classé, ses espaces verts et son ambiance sereine, elle séduit aussi bien les résidents permanents que les investisseurs.
N’hésitez pas à me contacter pour plus d’informations ou pour un accompagnement sur mesure dans votre projet immobilier.
Honoraires d’agence à la charge du vendeur. Bien non soumis au DPE. Les informations sur les risques auxquels ce bien est exposé sont disponibles sur le site Géorisques : www.georisques.gouv.fr. La présente annonce immobilière a été rédigée sous la responsabilité éditoriale de Mlle Sarah Rozière EI (ID 83696), mandataire indépendant en immobilier (sans détention de fonds), agent commercial de la SAS I@D France immatriculé au RSAC de Clermont-Ferrand sous le numéro 978616993, titulaire de la carte de démarchage immobilier pour le compte de la société I@D France SAS.
Retrouvez tous nos biens sur notre site internet. www.iadfrance.fr
Mandat : 1864918-24
Diagnostic de Performance Énergétique (DPE)
Plus d'informations
-
Descriptif
- Étage du bien : 4eme
- Ascenseur
- Nb. Parking : 1
- Nb. de pièces : 4
-
Equipement
- Digicode
- Interphone
-
Conditions
- Honoraires à charge de : vendeur
-
Superficies
- Surface habitable : 73 m²
Localisation
Contactez nous
Pour plus d'informations sur cette annonce, n'hésitez pas à nous contacter