Vente
Maison
à
Saint-Georges-de-Montaigu
247 500 €
Saint-Georges-de-Montaigu (85600)
iad France - Yvan Daniau (06 40 28 27 30) vous propose : St Georges de Montaigu
Investisseurs ou primo-accédants, ce programme de vente en VEFA (Vente en l’ETAT du Futur Achèvement) est pour vous.
Frais de notaire réduits et avantage fiscal nouvelle loi Jeanbrun.
Dans un environnement calme et résidentiel en hyper centre découvrez ce nouveau projet, alliant confort moderne et qualité de vie.
Nous vous proposons ce logement clé en main dont accès aux personnes à mobilité réduite, avec de belles prestations :
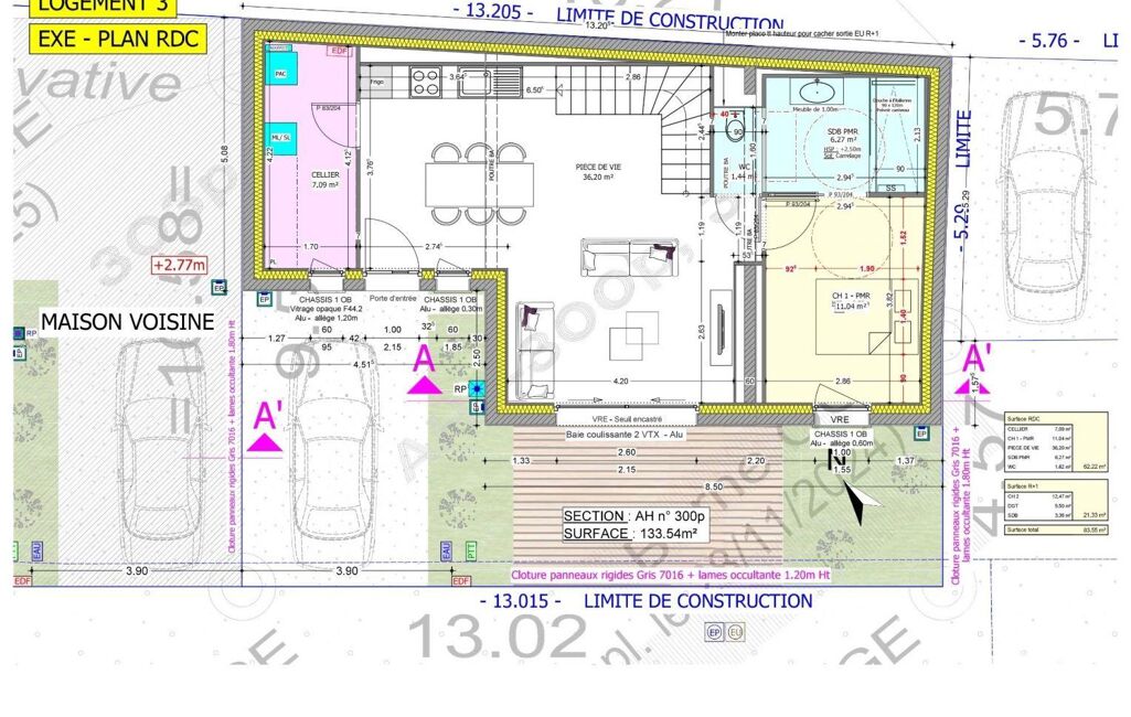
Au RDC
Une pièce de vie de 36.20 m² environ avec cuisine aménagée
Une Chambre de 11.04 m² environ
Une Salle de bain de 6.27 m ² avec vasque et douche à l’italienne, faïence, paroi vitrée
Un WC
Un cellier avec évier de 7.09 m² environ
Un garage non attenant de 21.57 m² environ avec portail sectionnel motorisé
A L’ETAGE
Palier de 9.72 m² environ
WC
Une salle bain de 5.04 m² environ avec vasque et douche à l’italienne, faïence, paroi vitrée
2 chambres de 10.34 et 10.09 m² environ dont une avec placard aménagé
EXTERIEUR
Terrasse béton, clôtures et murets enduits.
Chauffage pompe à chaleur plancher chauffant rdc et étage
A réserver sans tarder
Honoraires d’agence à la charge du vendeur. Bien non soumis au DPE. Les informations sur les risques auxquels ce bien est exposé sont disponibles sur le site Géorisques : www.georisques.gouv.fr. La présente annonce immobilière a été rédigée sous la responsabilité éditoriale de M. Yvan Daniau EI (ID 21370), mandataire indépendant en immobilier (sans détention de fonds), agent commercial de la SAS I@D France immatriculé au RSAC de LA ROCHE SUR YON sous le numéro 504419409, titulaire de la carte de démarchage immobilier pour le compte de la société I@D France SAS.
Retrouvez tous nos biens sur notre site internet. www.iadfrance.fr
Mandat : 1964389-3
Diagnostic de Performance Énergétique (DPE)
Plus d'informations
-
Descriptif
- Nbre. d'étages : 1
- Nb. de pièces : 4
-
Superficies
- Superficie terrain : 134 m²
- Surface habitable : 84 m²
-
Etat
- Année de construction : 2026
-
Conditions
- Honoraires à charge de : vendeur
Localisation
Contactez nous
Pour plus d'informations sur cette annonce, n'hésitez pas à nous contacter