Vente
Maison
à
Lieusaint
270 000 €
Lieusaint (77127)
iad France - Yoann Lucarelli vous propose: Maison familiale 4 pièces de 82m² proche de toutes commodités.
Laissez vous séduire par cette maison chaleureuse située sur la paisible comme de Lieusaint.
Construite en 2009 et parfaitement entretenue, cette propriété offre un espace de vie confortable pour une famille à la recherche de tranquillité.
Cette maison répartis sur 2 étages se compose :
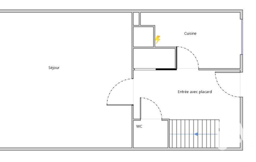
Au rez de chaussée : une entrée, une cuisine équipée et aménagée, un wc, un salon lumineux donnant accès sur la terrasse et jardin ensoleillé.
Au premier étage : Un palier avec rangements, une grande chambre de 13m², une salle de bain, un wc et une seconde chambre de 12m² avec un escalier donnant accès au comble.
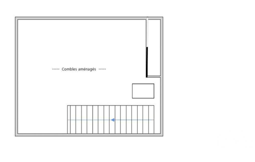
Comble : une chambre de 11m² ( 18m² au sol ).
Chaque pièce a été aménagée avec soin, offrant des espaces à vivre lumineux et fonctionnels.
Le jardin, véritable havre de paix, vous invite à profiter des beaux jours et à partager des moments de convivialité en plein air avec vos proches. Un espace idéal pour les enfants.
Située dans une résidence sécurisée, cette maison offre un environnement serein et paisible.
Des atouts comme la fibre optique, la pompe à chaleur, le chauffage au sol, les cameras de surveillance et la luminosité naturelle vous garantissent un confort de vie optimal.
Deux places de parking vous sont réservées, assurant praticité et sécurité pour vos véhicules.
Cette charmante maison est une opportunité à ne pas manquer pour les familles en quête d'un cocon douillet où il fait bon vivre. N'attendez plus pour venir la visiter et laissez-vous charmer par son atmosphère chaleureuse.
La presente annonce immobiliere vise 2 lots situés dans une copropriété de 157 lots au total et ne faisant l'objet d'aucune procédure en cours citée à l'article L. 721-1 du code de la construction et de l'habitation. Montant moyen mensuel de charges déclaré par le vendeur : 93.33€ par mois (soit 1120 € annuel). Honoraires d'agence à la charge du vendeur.
Information d'affichage énergétique sur ce bien : classe ENERGIE C indice 163 et classe CLIMAT A indice 5. Les informations sur les risques auxquels ce bien est exposé, y compris l'obligation légale de débroussaillement, sont disponibles sur le site Géorisques : http://www.georisques.gouv.fr.
La présente annonce immobilière a été rédigée sous la responsabilité éditoriale de M Yoann Lucarelli mandataire indépendant en immobilier (sans détention de fonds), agent commercial de la SAS I@D France immatriculé au RSAC de MELUN sous le numéro 851152702, titulaire de la carte de démarchage immobilier pour le compte de la société I@D France SAS.
Mandat : 1967038
Diagnostic de Performance Énergétique (DPE)
Plus d'informations
-
Equipement
- Câble TV
- Digicode
- Placards
- Chauffage : electrique radiateur
-
Descriptif
- Nbre. d'étages : 2
- Nbre. de chambres : 3
- Nb. Parking : 1
- Nb. de pièces : 4
-
Loi ALUR
- Copropriété
- Nombre de lots de la copropriété : 157
- Moyenne de la quote part(an) : 1 120 €
-
Etat
- Année de construction : 2009
-
Conditions
- Honoraires à charge de : vendeur
-
Superficies
- Surface habitable : 83 m²
Localisation
Contactez nous
Pour plus d'informations sur cette annonce, n'hésitez pas à nous contacter